Aller au contenu principal

Achat Appartement 2 pièce(s) 51 m2

339 000 €
Rennes
(
35000
)
59493-A35

En vous inscrivant sur le site du cabinet Moraine vous bénéficierez de nombreux services complémentaires. L'inscription est totalement gratuite et ne vous engage rien.

Se connecter
2
Rooms
1
Chambre(s)
51m²
Surface

Présentation du bien

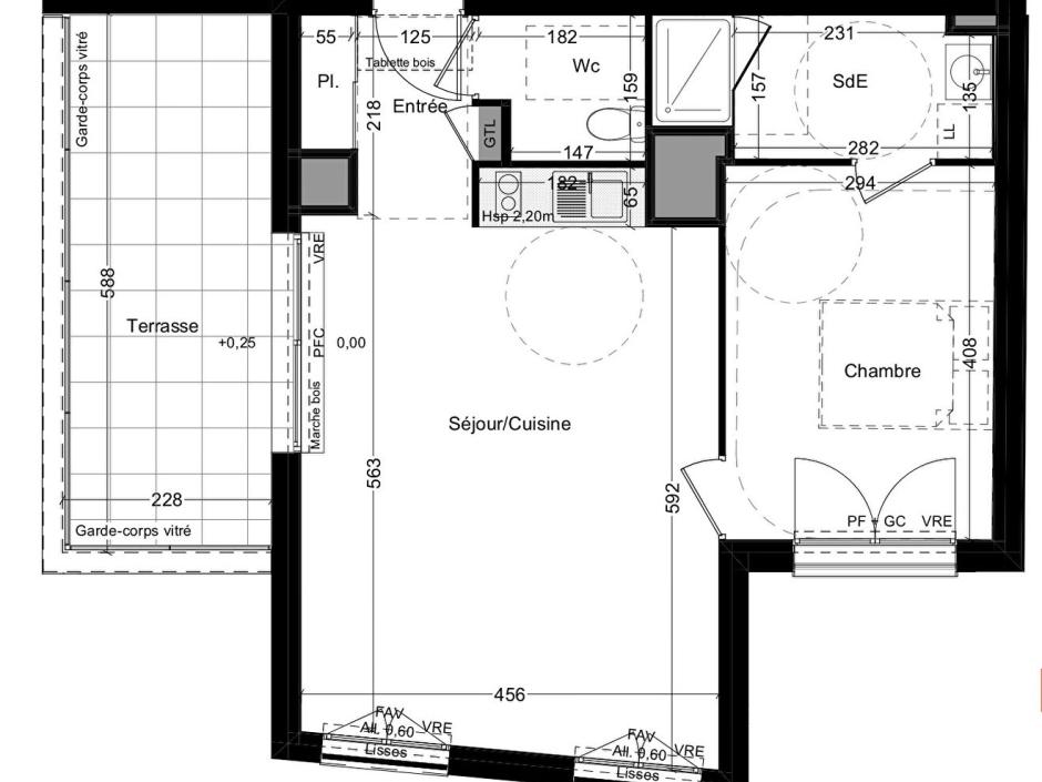
RENNES - Quartier St Hélier - Appartement 2 pièces de 51.11m² Ouest - 3eme étage - ascenseur - terrasse de 13.41m²
idéalement située, proche du centre ville et à proximité de la gare, des arrêts de bus et du métro, (6 lignes de bus à proximité de la résidence - Ligne b du métro - stations Gare
et Saint-Germain à 15 min à pied), dans une résidence contemporaine avec ascenseur, appartement 2 pièces de 51.11m² exposé Ouest situé au 3ème étage comprenant : une entrée avec placard, un séjour salon avec cuisine ouverte de 27.47m², accès à la terrasse de 13.41m², une chambre, salle d'eau, wc indépendant. Possibilité stationnement en sus du prix. Prix promoteur - frais de notaire réduits - Les informations sur les risques auxquels ce bien est exposé sont disponibles sur le site Géorisques : www.georisques.gouv.fr. Photos non contractuelles - Suggestions d'aménagements
Copropriété de 33 lots - dont 33 lots habitation. (Pas de procédure en cours).

Charges annuelles : 734 euros.

Dépenses énergétiques

A B C D E F G logement très performant logement extrêmement peu performant Non requis
A B C D E F G emissions de CO₂ très importantes peu d'émission de CO₂ Non requis

Localisation du bien

Contactez-nous

Contactez un conseiller par téléphone ou
laissez-nous un message via notre formulaire.

02 99 32 43 86

Simulation financière
Montant de votre prêt Montant du prêt
Durée de votre prêt Durée du prêt
Taux d'intérêt avant négociation Taux d'intérêts
Montant du prêt
Durée du prêt
Mensualités

 Recharger Contactez-nous

Biens similaires

A B C D E F G logement très performant logement extrêmement peu performant Non requis
A B C D E F G emissions de CO₂ très importantes peu d'émission de CO₂ Non requis
Affichage :