Achat Appartement 3 pièce(s) 65 m2
En vous inscrivant sur le site du cabinet Moraine vous bénéficierez de nombreux services complémentaires. L'inscription est totalement gratuite et ne vous engage rien.
Se connecterPrésentation du bien
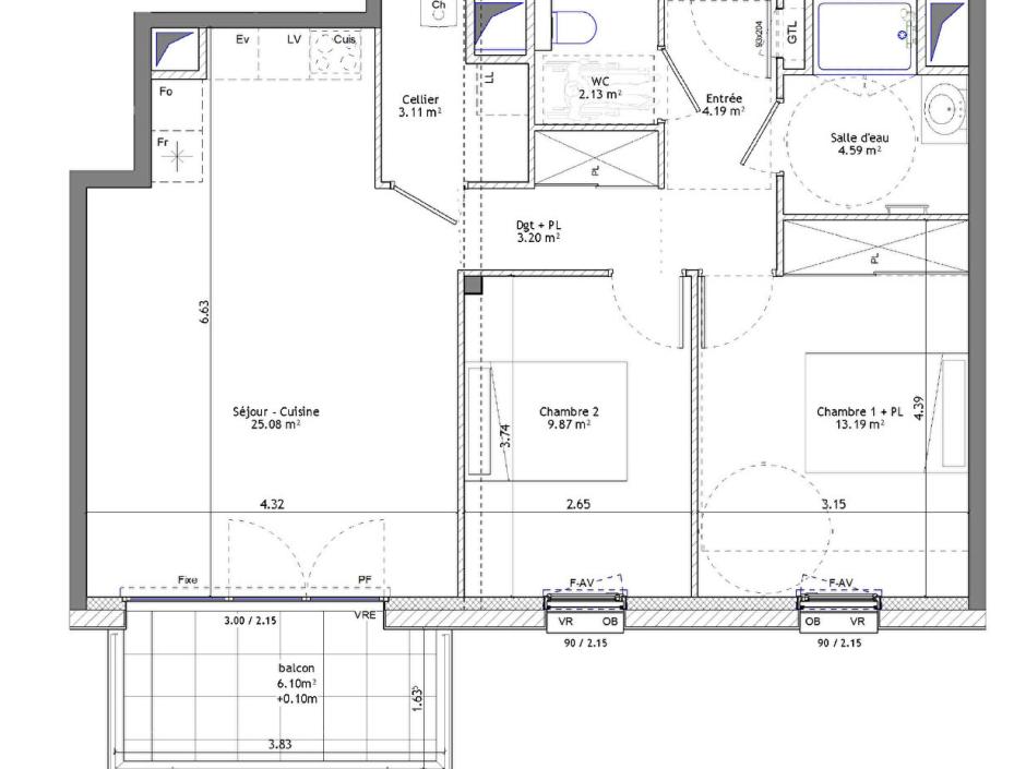
Saint-Erblon - Appartement 3 pièces de 65.36m² avec balcon 6.10m² au 1er étage avec ascenseur et garage sécurisé
A proximité des transports et commodités, sur la commune de Saint-Erblon, dans une résidence contemporaine conforme aux normes RT2020, cet appartement offre un cadre de vie calme et verdoyant. D'une superficie de 65.36 m², il se trouve au premier étage et bénéficie d'une orientation Sud-Est.
Ce bien se compose d'une entrée avec placard, d'un séjour lumineux avec cuisine ouverte donnant sur un balcon de 6.10 m², de deux chambres dont une avec placard, d'une salle d'eau, de WC indépendants et d'un cellier. Un garage en sous-sol sécurisé complète ce lot.- Les informations sur les risques auxquels ce bien est exposé sont disponibles sur le site Géorisques : www.georisques.gouv.fr. Photos non contractuelles - Suggestions d'aménagements
Copropriété de 19 lots - dont 19 lots habitation. (Pas de procédure en cours).
Charges annuelles : 936 euros.
Dépenses énergétiques
Localisation du bien
Contactez-nous
          Contactez un conseiller par téléphone ou
          laissez-nous un message via notre formulaire.
        
 
 
 
 
 
 
 
 
