Buy House 4 room(s) 84 m2
By registering on Cabinet Moraine website, you will benefit from numerous additional services. Registration is completely free and does not commit you to anything.
Log inProperty description
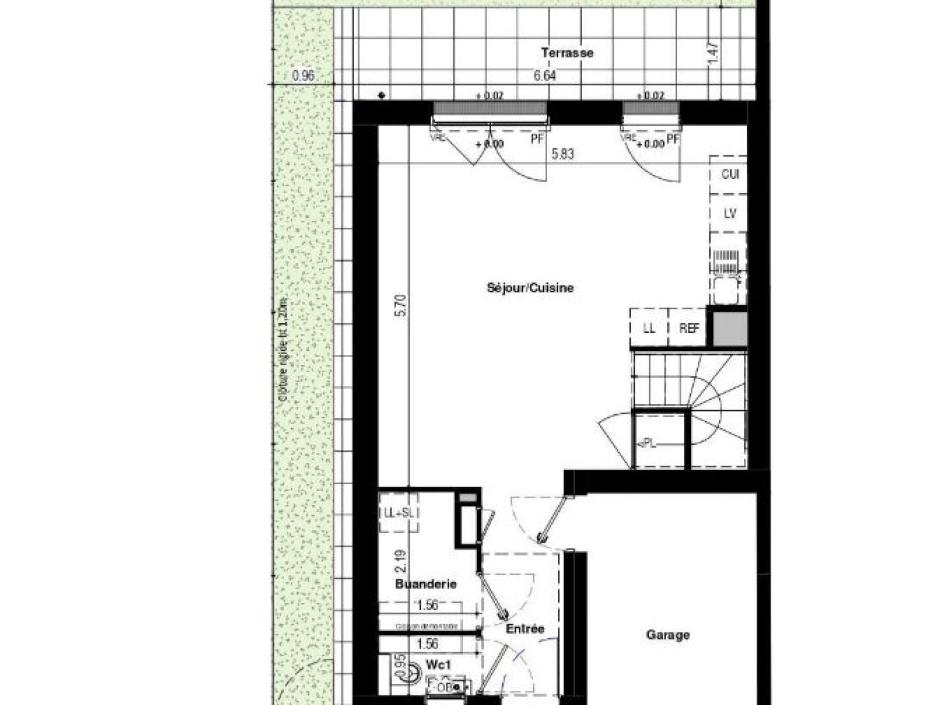
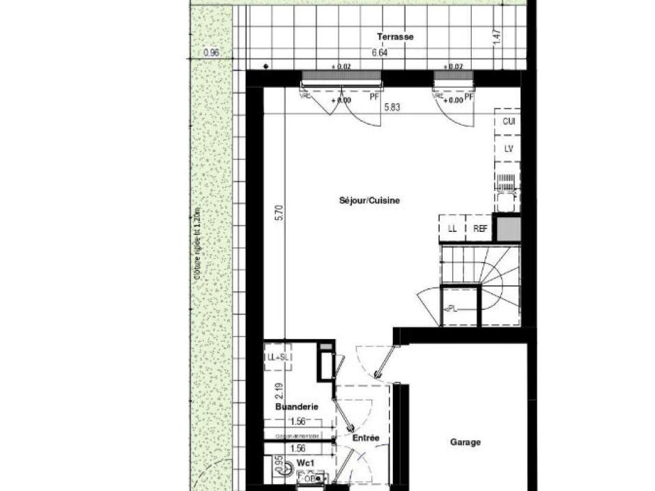
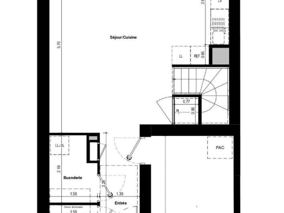
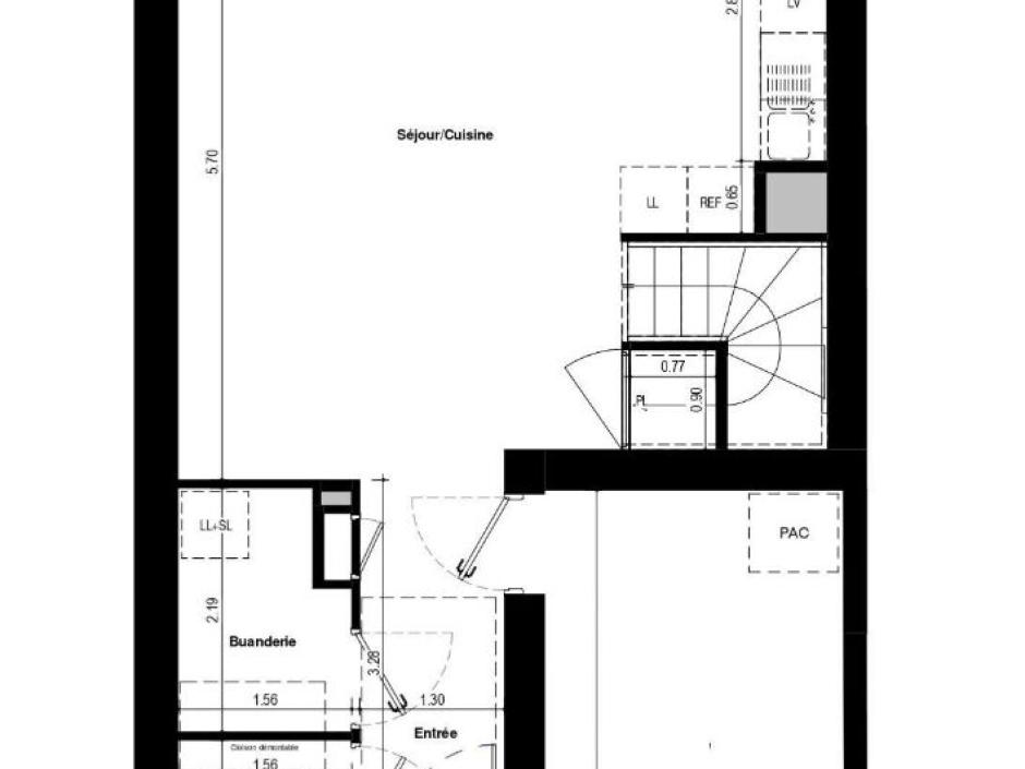
COURROUZE / ST JACQUES - 4-ROOM HOUSE 84.90sqm - garden 53.39sqm - garage and parking Discover this contemporary house of 84.90 sqm RT 2020 - 4 rooms - with a private garden of 53.39 sqm and a terrace of 9.74 sqm, accompanied by a garage and private parking. Ideally located just 500 meters from metro line B and close to schools, shops and infrastructure, it seduces with its functional and practical living environment. Integrated into a real estate complex, it consists of an entrance with a laundry room, a bright living room with an open kitchen, opening onto the terrace and the outdoor space. A separate toilet completes the ground floor. Upstairs, three bedrooms with built-in storage/cupboards, a bathroom equipped with a double sink and a second separate toilet complete this layout designed to combine comfort and modernity. Promoter price - Reduced notary fees. For any information relating to the risks associated with this property, please consult the Géorisques website (www.georisques.gouv.fr). Non-contractual photos - Suggestions for developments. Do not hesitate to contact us today to find out more.
Condominiums of 24 units (No proceedings in progress). Annual expenses : 1252 euros.