Skip to main content

Buy Apartment 5 room(s) 99 m2

449 000 €
Vitré
(
35500
)
60791-C201

By registering on Cabinet Moraine website, you will benefit from numerous additional services. Registration is completely free and does not commit you to anything.

Log in
5
Rooms
4
Bedrooms
1
Bathroom
99m²
Surface

Property description

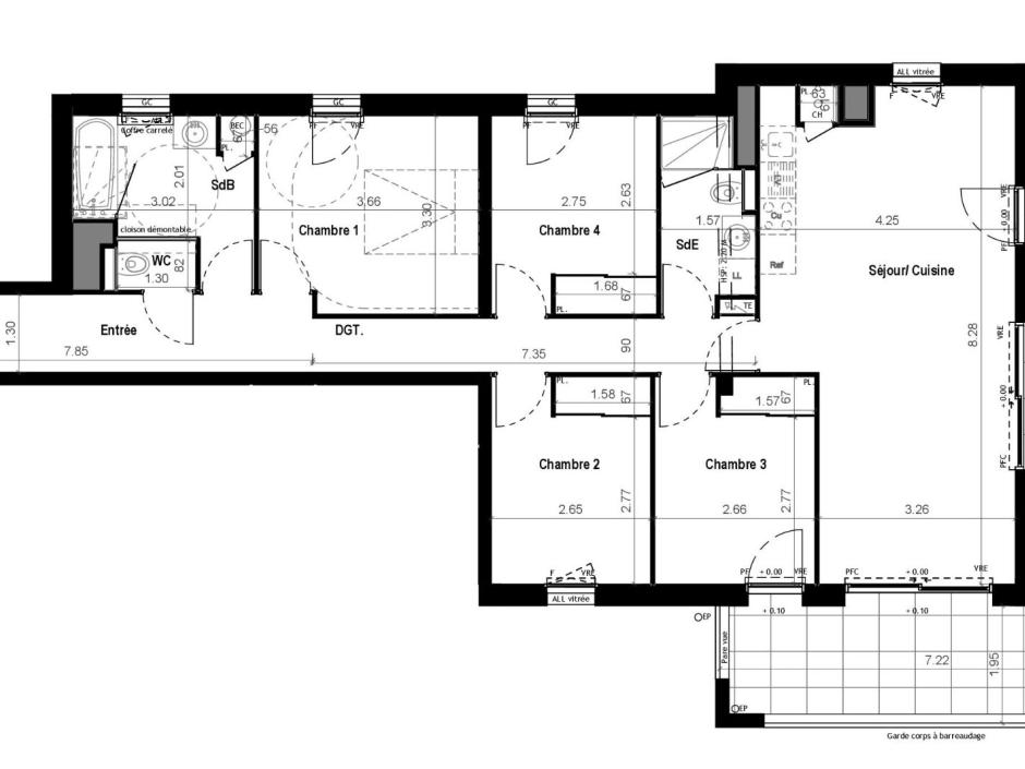
VITRÉ - 5-room apartment of 99.01sqm - 2nd floor - elevator - balcony of 30.04sqm - double garage In a contemporary residence offering a privileged living environment, a stone's throw from the city center, this 5-room apartment, with a surface area of 99.01 sqm, benefits from a location in the immediate vicinity of shops, services and transport. Located on the 2nd floor with elevator, it consists of a large entrance hall, a vast, bright living room with open kitchen, extended by a balcony of 30.04sqm. The sleeping area includes four bedrooms, closets, a bathroom, shower room with toilet, a separate toilet. A double secure garage in the basement completes this property. Promoter price - Reduced notary fees. Information on the risks to which this property is exposed is available on the Géorisques website: www.georisques.gouv.fr. Non-contractual photos - Suggestions for layouts. Individual heating
Condominiums of 65 units (No proceedings in progress). Annual expenses : 1400 euros.

Energy expenditure

A B C D E F G high performance housing extremely inefficient housing Not required
A B C D E F G very high CO2 emissions low CO2 emissions Not required

Location of property

Contactez-nous

Contact an advisor by phone or
leave us a message by filling the form

02 99 32 43 86

Financial simulation
Your loan amount Loan amount
Your loan period Loan period
Interest rate before negotiation Interest rates
Loan amount
Loan period
Monthly payments

 Reload Contact us

Biens similaires

A B C D E F G high performance housing extremely inefficient housing Not required
A B C D E F G very high CO2 emissions low CO2 emissions Not required
Affichage :