Skip to main content

Buy Apartment 5 room(s) 99 m2

486 000 €
Saint-Malo
(
35400
)
68293-C101

By registering on Cabinet Moraine website, you will benefit from numerous additional services. Registration is completely free and does not commit you to anything.

Log in
5
Rooms
4
Bedrooms
1
Bathroom
99m²
Surface

Property description

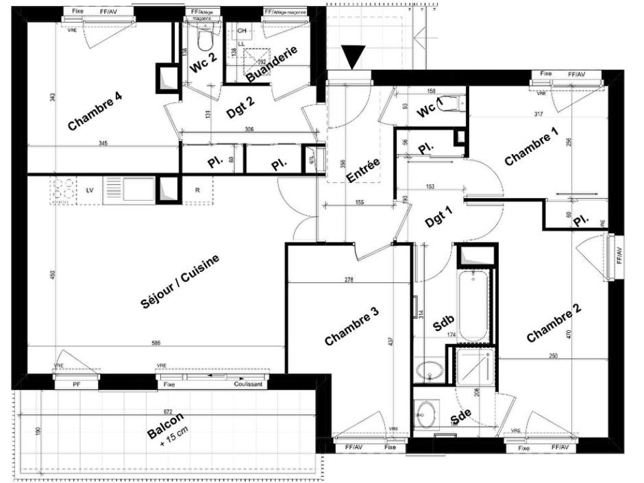
SAINT MALO - 5 room apartment of 99m² South West - 1st floor - balcony 12.77m² - garage and parking Located in SAINT MALO, close to amenities and services, in a new luxury residence, with quality services and comfort of the latest RT2012 standards benefiting with a good geographical location, located on the 1st floor, 5-room apartment of 99.40m², facing South West, comprising: an entrance with cupboard, living room opening onto a 12.77m² balcony, open kitchen, 4 bedrooms, bathroom , bathroom, wcs, cupboards, laundry room, garage and private parking. Developer price - reduced notary fees - latest RT2012 standards www.immobilier-moraine.fr 02 99 32 43 86
Condominiums of 48 units. Annual expenses : 1425 euros.

Energy expenditure

A B C D E F G high performance housing extremely inefficient housing Not disclosed
A B C D E F G very high CO2 emissions low CO2 emissions Not disclosed

Location of property

Contactez-nous

Contact an advisor by phone or
leave us a message by filling the form

02 99 32 43 86

Financial simulation
Your loan amount Loan amount
Your loan period Loan period
Interest rate before negotiation Interest rates
Loan amount
Loan period
Monthly payments

 Reload Contact us

Biens similaires

A B C D E F G high performance housing extremely inefficient housing Not disclosed
A B C D E F G very high CO2 emissions low CO2 emissions Not disclosed
Affichage :