Skip to main content

Buy Apartment 2 room(s) 41 m2

224 000 €
Saint-Malo
(
35400
)
6102-B305

By registering on Cabinet Moraine website, you will benefit from numerous additional services. Registration is completely free and does not commit you to anything.

Log in
2
Rooms
1
Bedroom
41m²
Surface

Property description

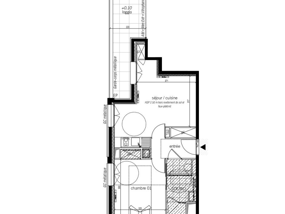
SAINT MALO - 2-room apartment 41.50sqm West - 3rd floor - elevator - 9.40sqm loggia - parking Located at the entrance to Saint-Malo, between Saint-Servan and near the Domaine de la Briantais, this apartment on the 3rd floor of a contemporary residence with elevator benefits from an attractive location. It offers excellent accessibility: Rennes can be reached in 45 minutes via the expressway, and the TGV station is only 9 minutes away by car or bus. All amenities are nearby: bakery, mini-market, shopping centers, as well as schools, from kindergarten to high school. The Saint-Servan market is also only 5 minutes away by car. It consists of an entrance with closet, a living room with open kitchen, giving access to a 9.40sqm loggia to the West, a bedroom, a bathroom, separate toilet. Secure underground parking. Ideal for a primary purchase, secondary purchase or rental investment. Promoter price - reduced notary fees - Information on the risks to which this property is exposed is available on the Géorisques website: www.georisques.gouv.fr. Non-contractual photos - Suggestions for developments
Condominiums of 40 units. Annual expenses : 604 euros.

Energy expenditure

A B C D E F G high performance housing extremely inefficient housing Not required
A B C D E F G very high CO2 emissions low CO2 emissions Not required

Location of property

Contactez-nous

Contact an advisor by phone or
leave us a message by filling the form

02 99 32 43 86

Financial simulation
Your loan amount Loan amount
Your loan period Loan period
Interest rate before negotiation Interest rates
Loan amount
Loan period
Monthly payments

 Reload Contact us

Biens similaires

A B C D E F G high performance housing extremely inefficient housing Not required
A B C D E F G very high CO2 emissions low CO2 emissions Not required
Affichage :