Skip to main content

Buy Apartment 3 room(s) 64 m2

250 000 €
Saint-Erblon
(
35230
)
6043-14

By registering on Cabinet Moraine website, you will benefit from numerous additional services. Registration is completely free and does not commit you to anything.

Log in
3
Rooms
2
Bedrooms
64m²
Surface

Property description

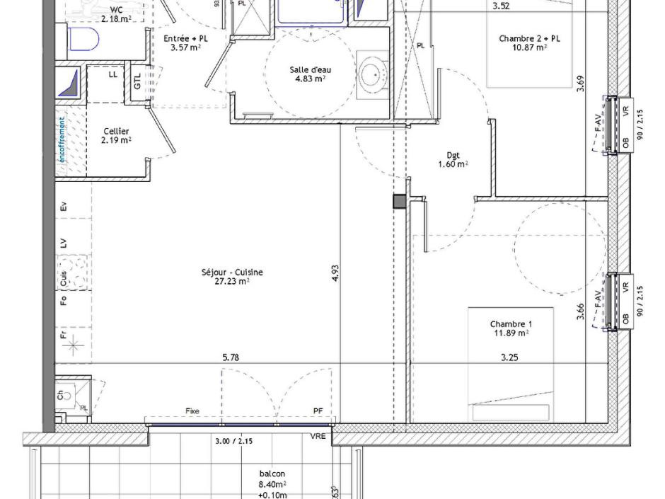
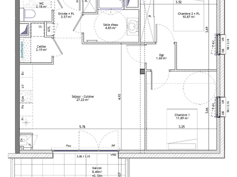
Saint Erblon - 3-room apartment 64.36sqm - 1st floor - 8.40sqm balcony - elevator - secure garage Ideally located in St Erblon, south of Rennes, close to amenities, transport, ... in a contemporary residence meeting the latest RT2020 standards, this apartment benefits from a peaceful and green living environment, close to amenities and transport. With a surface area of 64.36 sqm, it is located on the first floor with elevator and benefits from a South orientation. This property consists of an entrance with closet, a bright living room with open kitchen opening onto a 8.40 sqm balcony, two bedrooms, one with closet, a shower room, separate toilet and a storeroom. A secure underground garage completes this lot. - Information on the risks to which this property is exposed is available on the Géorisques website: www.georisques.gouv.fr. Non-contractual photos - Suggestions for layouts
Condominiums of 19 units. Annual expenses : 936 euros.

Energy expenditure

A B C D E F G high performance housing extremely inefficient housing Not required
A B C D E F G very high CO2 emissions low CO2 emissions Not required

Location of property

Contactez-nous

Contact an advisor by phone or
leave us a message by filling the form

02 99 32 43 86

Financial simulation
Your loan amount Loan amount
Your loan period Loan period
Interest rate before negotiation Interest rates
Loan amount
Loan period
Monthly payments

 Reload Contact us

Biens similaires

A B C D E F G high performance housing extremely inefficient housing Not required
A B C D E F G very high CO2 emissions low CO2 emissions Not required
Affichage :