Buy Apartment 4 room(s) 81 m2
By registering on Cabinet Moraine website, you will benefit from numerous additional services. Registration is completely free and does not commit you to anything.
Log inProperty description
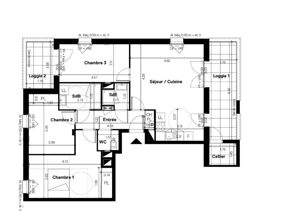
Nantes - 4-room apartment 81.67sqm South- 3rd floor - elevator - 16.92sqm loggias - secure parking. Ideally located in a dynamic neighborhood, this apartment benefits from a pleasant living environment combining greenery, amenities and accessibility. Just a few steps away, enjoy numerous restaurants, services, schools, swimming pool and green spaces, as well as quick access to the city center via tram, bus, chronobus or even by bike. Nestled on the 3rd floor of a residence with careful architecture and elevator, this beautiful address reveals a dual-aspect apartment of 81.67 sqm. Its functional layout includes an entrance with closet, a bright living room with open kitchen, opening onto a loggia of 11.46 sqm with pantry. The sleeping area offers three bedrooms, two with closet and one with a private loggia of 5.46 sqm, a shower room, a bathroom and a separate toilet. Secure underground parking completes this property, ideal for combining comfort, modernity and a pleasant lifestyle. Promoter price - reduced notary fees - Information on the risks to which this property is exposed is available on the Géorisques website: www.georisques.gouv.fr. Non-contractual photos - Suggestions for developments
Condominiums of 39 units (No proceedings in progress). Annual expenses : 1166  euros.
 
 
 
 
 
 
 
 
