Skip to main content

Buy Apartment 4 room(s) 82 m2

309 000 €
Chantepie
(
35135
)
6293-B208

By registering on Cabinet Moraine website, you will benefit from numerous additional services. Registration is completely free and does not commit you to anything.

Log in
4
Rooms
3
Bedrooms
1
Bathroom
82m²
Surface

Property description

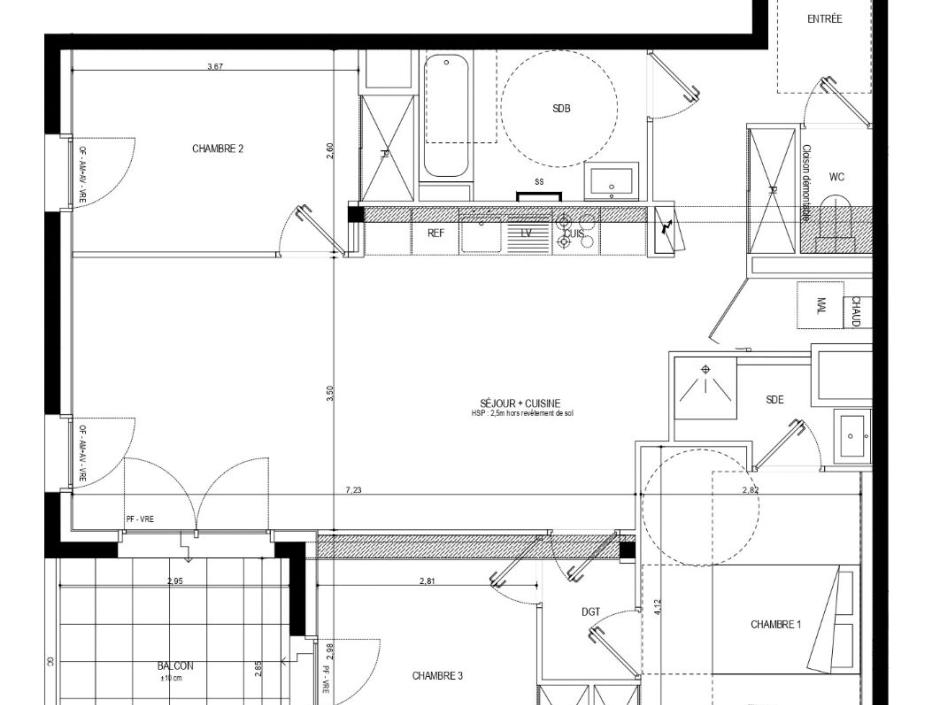
CHANTEPIE - Town Center - 4-Room Apartment 82.40sqm Southwest Facing - 8.42sqm Balcony - 2nd Floor - Elevator - Secure Underground Parking. Just minutes from the center of Chantepie, in a quiet, green residential area, within a contemporary building, this 4-room apartment of 82.40sqm is located on the 2nd floor with elevator access. Facing southwest, it comprises: an entrance hall with closet, a living room with open-plan kitchen opening onto an 8.42sqm balcony, 3 bedrooms, a bathroom, a shower room, closets, and a separate toilet. Secure underground parking is included. Everything is easily accessible on foot, by bicycle, or by public transport. Developer price - Reduced notary fees - Information on the risks to which this property is exposed is available on the Géorisques website: www.georisques.gouv.fr. Photos are not contractual - Layout suggestions
Condominiums of 38 units. Annual expenses : 1180 euros.

Energy expenditure

A B C D E F G high performance housing extremely inefficient housing Not required
A B C D E F G very high CO2 emissions low CO2 emissions Not required

Location of property

Contactez-nous

Contact an advisor by phone or
leave us a message by filling the form

02 99 32 43 86

Financial simulation
Your loan amount Loan amount
Your loan period Loan period
Interest rate before negotiation Interest rates
Loan amount
Loan period
Monthly payments

 Reload Contact us

Biens similaires

A B C D E F G high performance housing extremely inefficient housing Not required
A B C D E F G very high CO2 emissions low CO2 emissions Not required
Affichage :