Skip to main content

Buy Apartment 3 room(s) 62 m2

339 000 €
Betton
(
35830
)
6232-32

By registering on Cabinet Moraine website, you will benefit from numerous additional services. Registration is completely free and does not commit you to anything.

Log in
3
Rooms
2
Bedrooms
62m²
Surface

Property description

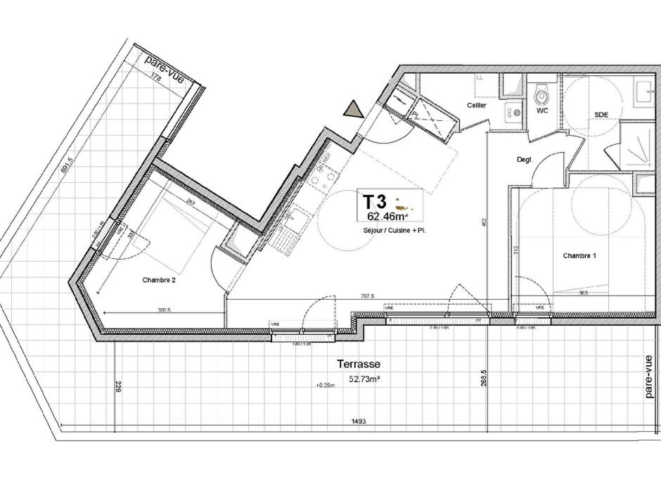
BETTON - 2-bedroom apartment of 62.46sqm facing south - 3rd floor - 52.73sqm terrace - garage. Ideally located in Bruz, a sought-after town on the outskirts of Rennes, this 2-bedroom apartment enjoys a prime location within a small, private residence built to RT2020 standards. Just steps from local shops, the train station, the canal banks, and only minutes from the market and schools, it offers a convenient and peaceful living environment. Situated on the 3rd floor with elevator access, this bright, south-facing 2-bedroom apartment of 62.46sqm comprises an entrance hall with a built-in wardrobe, a spacious living room with an open-plan kitchen opening onto a superb 52.73sqm terrace, perfect for enjoying sunny days. It also features two bedrooms, a modern shower room, a separate WC, and a storage room. A secure underground garage completes this rare find on the Bruz market. An ideal location, high-quality amenities, and an exceptional terrace: an opportunity not to be missed. Take advantage of developer pricing, reduced notary fees, and an exceptional living environment just a stone's throw from Rennes. Contact us today to discover the available apartments. Information on the risks to which this property is exposed is available on the Géorisques website: www.georisques.gouv.fr.
Condominiums of 30 units (No proceedings in progress). Annual expenses : 892 euros.

Energy expenditure

A B C D E F G high performance housing extremely inefficient housing Not required
A B C D E F G very high CO2 emissions low CO2 emissions Not required

Location of property

Contactez-nous

Contact an advisor by phone or
leave us a message by filling the form

02 99 32 43 86

Financial simulation
Your loan amount Loan amount
Your loan period Loan period
Interest rate before negotiation Interest rates
Loan amount
Loan period
Monthly payments

 Reload Contact us

Biens similaires

A B C D E F G high performance housing extremely inefficient housing Not required
A B C D E F G very high CO2 emissions low CO2 emissions Not required
Affichage :