Buy Apartment 4 room(s) 90 m2
By registering on Cabinet Moraine website, you will benefit from numerous additional services. Registration is completely free and does not commit you to anything.
Log inProperty description
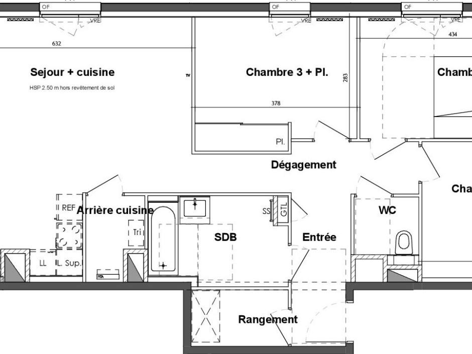
RENNES - PLAINE DE BAUD - 4-room apartment 90.19sqm West - 6th floor - elevator - balconies of 12.21sqm and 11.91sqm - private parking in secure basement In a peaceful city living environment, by the water with beach and water activities, not far from the historic center and the quays, services and amenities.. cycle paths and public transport: 10 minutes by bike from the town hall square, 5 minutes by car from the hyper center and the LGV station. In a contemporary residence, located on the 6th floor with elevator, 4-room apartment of 90.19 sqm facing West, comprising: an entrance with a storage space, hallway, a living room with open fitted kitchen giving access to a first balcony of 12.21 sqm, a utility room, three bedrooms, one with a closet, two others with access to a second balcony of 11.91 sqm, a bathroom, separate toilet, secure underground parking. Ideal purchase as a main or secondary residence or rental. Promoter price - Reduced notary fees - Information on the risks to which this property is exposed is available on the Géorisques website: www.georisques.gouv.fr. Non-contractual photos - Suggestions for layouts
Condominiums of 30 units. Annual expenses : 1298 euros.