Buy Apartment 3 room(s) 63 m2
By registering on Cabinet Moraine website, you will benefit from numerous additional services. Registration is completely free and does not commit you to anything.
Log inProperty description
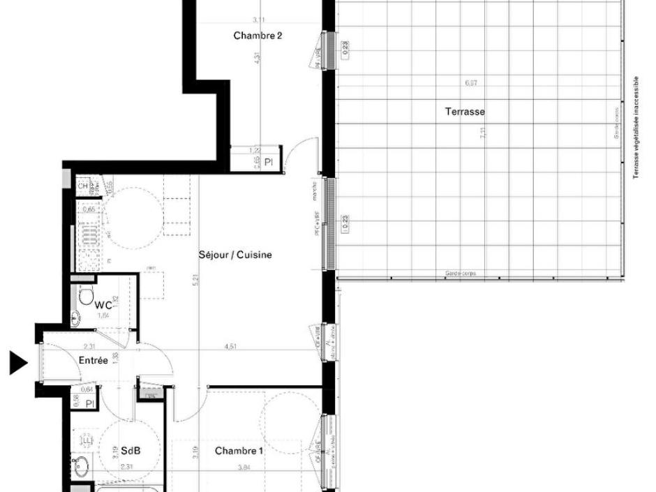
RENNES CENTER - 3 room apartment 63.90sqm 6th floor terrace of 49.60 sqm - lift - secure parking in the basement. A haven of tranquility in the city center! You can do everything on foot: from the Lices market to the historic center and its pedestrian streets, restaurants, schools, the banks of the Ille... in a residence that meets the latest RT2012 standards with top-of-the-range services, apartment 3 rooms of 63.90sqm on the 6th floor including: an entrance with cupboard, living room opening onto a terrace of 49.60 sqm, open kitchen, two bedrooms, one with cupboard, bathroom, wc. Secure basement parking. Developer price - reduced notary fees - RT2012 standards www.immobilier-moraine.fr 02 99 32 43 86 Information on the risks to which this property is exposed is available on the Georisques website: www.georisques.gouv.fr
Condominiums of 56 units. Annual expenses : 920 euros.