Buy Apartment 2 room(s) 44 m2
By registering on Cabinet Moraine website, you will benefit from numerous additional services. Registration is completely free and does not commit you to anything.
Log inProperty description
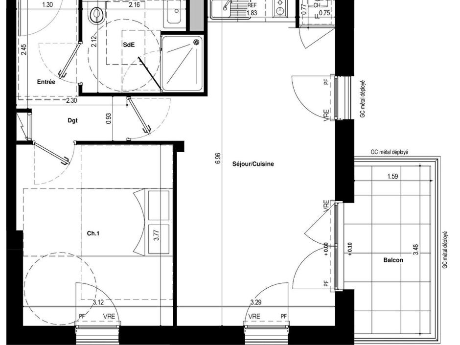
COURROUZE / ST JACQUES - 500 meters from the metro - 2-room apartment 44.04sqm South - 1st floor - elevator - balcony 5.53sqm Discover this 2-room apartment with a surface area of 44.04sqm, located on the 1st floor with elevator of a modern residence with the latest 2020 standards, 500 meters from the metro and transport. Located in the heart of a dynamic district, it offers a pleasant living environment with immediate access to services and infrastructure. Its strategic location guarantees optimal mobility thanks to the proximity of metro line B, bus lines and cycle paths. Bathed in light thanks to its southern exposure, this apartment consists of an entrance hall, a living room with open kitchen opening onto a 5.53 sqm balcony, a bedroom and a bathroom with WC. Don't miss this ideal opportunity for an investment or a first acquisition, combining comfort, modernity and practicality. Contact us today for more information! Promoter price - Reduced notary fees. Information on the risks to which this property is exposed is available on the Géorisques website: www.georisques.gouv.fr. Non-contractual photos, suggestions for developments
Condominiums of 24 units. Annual expenses : 648 euros.