Skip to main content

Buy Apartment 3 room(s) 68 m2

365 000 €
Bruz
(
35170
)
6223-25

By registering on Cabinet Moraine website, you will benefit from numerous additional services. Registration is completely free and does not commit you to anything.

Log in
3
Rooms
2
Bedrooms
68m²
Surface

Property description

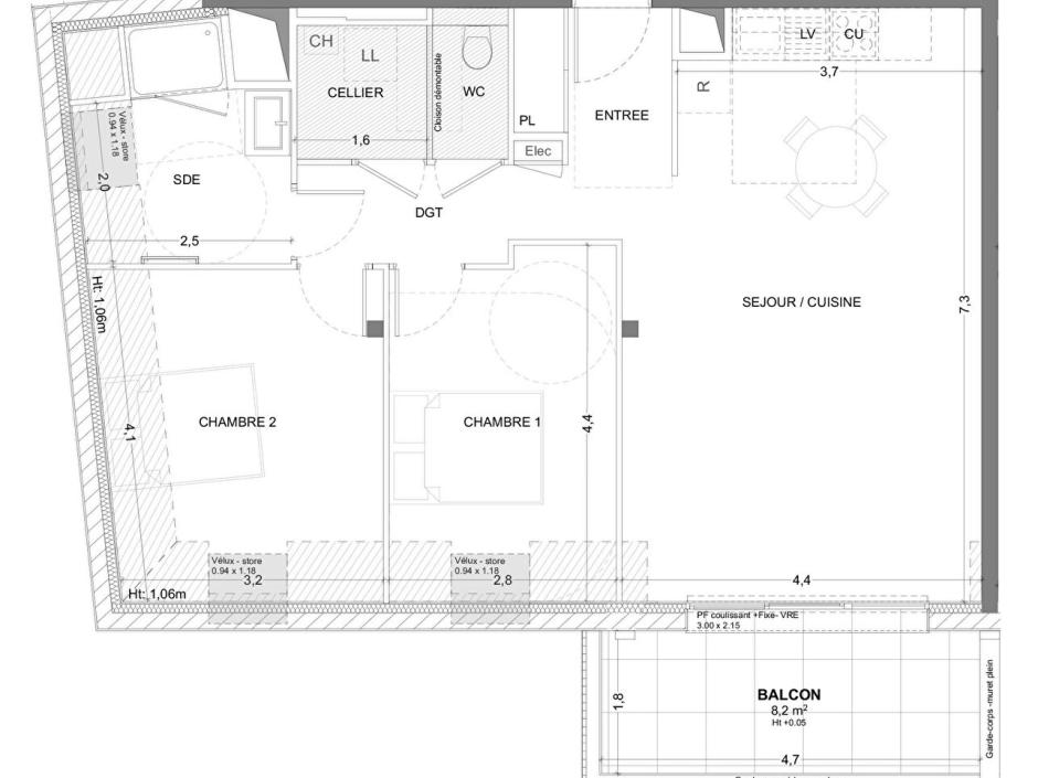
Bruz - 2-bedroom apartment, 68.26 sq m, south-facing, 2nd floor, elevator, 8.22 sq m loggia, secure underground garage. Just 9 km southwest of Rennes, close to the market, schools, and shops, discover this 2-bedroom apartment located on the second floor of a contemporary building compliant with RT2020 environmental standards, ensuring high energy and acoustic performance. With a living area of 68.26 sq m (for a total usable area of 75.20 sq m), this west-facing apartment comprises an entrance hall with a built-in wardrobe, a spacious and bright living room with an open-plan kitchen leading onto a pleasant 8.22 sq m loggia, perfect for enjoying sunny evenings. The sleeping area includes a hallway, two bedrooms, a modern shower room, a separate WC, and a storage room. A secure underground garage completes this property. In terms of mobility, the location is ideal: the Bruz TER train station provides access to Rennes in just 10 minutes, the STAR bus lines facilitate local travel, and the proximity of Rennes Bretagne Airport further enhances the connectivity of this property. This apartment combines modernity, comfort, and practicality in the heart of a dynamic and sought-after town within the Rennes metropolitan area: an ideal living environment for residing or investing in Bruz. Developer price - reduced notary fees. Information on the risks to which this property is exposed is available on the Géorisques website: www.georisques.gouv.fr.
Condominiums of 39 units. Annual expenses : 979 euros.

Energy expenditure

A B C D E F G high performance housing extremely inefficient housing Not required
A B C D E F G very high CO2 emissions low CO2 emissions Not required

Location of property

Contactez-nous

Contact an advisor by phone or
leave us a message by filling the form

02 99 32 43 86

Financial simulation
Your loan amount Loan amount
Your loan period Loan period
Interest rate before negotiation Interest rates
Loan amount
Loan period
Monthly payments

 Reload Contact us

Biens similaires

A B C D E F G high performance housing extremely inefficient housing Not required
A B C D E F G very high CO2 emissions low CO2 emissions Not required
Affichage :