Skip to main content

Buy House 4 room(s) 84 m2

505 000 €
Saint-Jacques-de-la-Lande
(
35136
)
60454-M002

By registering on Cabinet Moraine website, you will benefit from numerous additional services. Registration is completely free and does not commit you to anything.

Log in
4
Rooms
3
Bedrooms
1
Bathroom
84m²
Surface

Property description

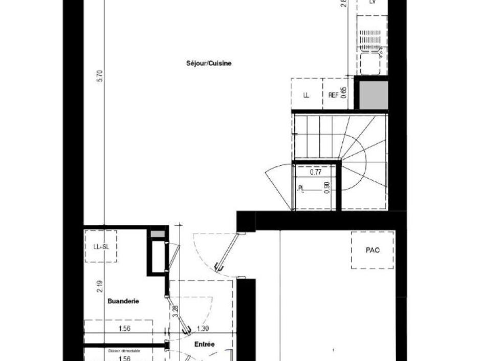
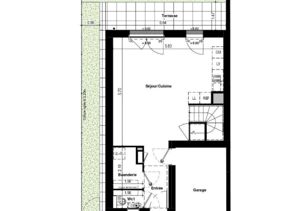
COURROUZE / ST JACQUES - 4-ROOM HOUSE 84.90sqm - garden 53.39sqm - garage and parking Discover this contemporary house of 84.90 sqm RT 2020 - 4 rooms - with a private garden of 53.39 sqm and a terrace of 9.74 sqm, accompanied by a garage and private parking. Ideally located just 500 meters from metro line B and close to schools, shops and infrastructure, it seduces with its functional and practical living environment. Integrated into a real estate complex, it consists of an entrance with a laundry room, a bright living room with an open kitchen, opening onto the terrace and the outdoor space. A separate toilet completes the ground floor. Upstairs, three bedrooms with built-in storage/cupboards, a bathroom equipped with a double sink and a second separate toilet complete this layout designed to combine comfort and modernity. Promoter price - Reduced notary fees. For any information relating to the risks associated with this property, please consult the Géorisques website (www.georisques.gouv.fr). Non-contractual photos - Suggestions for developments. Do not hesitate to contact us today to find out more.
Condominiums of 24 units. Annual expenses : 1252 euros.

Energy expenditure

A B C D E F G high performance housing extremely inefficient housing Not required
A B C D E F G very high CO2 emissions low CO2 emissions Not required

Location of property

Contactez-nous

Contact an advisor by phone or
leave us a message by filling the form

02 99 32 43 86

Financial simulation
Your loan amount Loan amount
Your loan period Loan period
Interest rate before negotiation Interest rates
Loan amount
Loan period
Monthly payments

 Reload Contact us

Biens similaires

A B C D E F G high performance housing extremely inefficient housing Not required
A B C D E F G very high CO2 emissions low CO2 emissions Not required
Affichage :