Skip to main content

Buy Apartment 2 room(s) 51 m2

339 000 €
Rennes
(
35000
)
59493-A35

By registering on Cabinet Moraine website, you will benefit from numerous additional services. Registration is completely free and does not commit you to anything.

Log in
2
Rooms
1
Bedroom
51m²
Surface

Property description

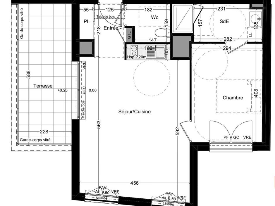
RENNES - St Hélier district - 2-room apartment of 51.11sqm West - 3rd floor - elevator - terrace of 13.41sqm ideally located, close to the city center and close to the train station, bus stops and the metro, (6 bus lines near the residence - Metro line b - Gare and Saint-Germain stations 15 min walk), in a contemporary residence with elevator, 2-room apartment of 51.11sqm facing West located on the 3rd floor comprising: an entrance with closet, a living room with open kitchen of 27.47sqm, access to the terrace of 13.41sqm, a bedroom, shower room, separate toilet. Parking available in addition to the price. Promoter price - reduced notary fees - Information on the risks to which this property is exposed is available on the Géorisques website: www.georisques.gouv.fr. Non-contractual photos - Suggestions for layouts
Condominiums of 33 units (No proceedings in progress). Annual expenses : 734 euros.

Energy expenditure

A B C D E F G high performance housing extremely inefficient housing Not required
A B C D E F G very high CO2 emissions low CO2 emissions Not required

Location of property

Contactez-nous

Contact an advisor by phone or
leave us a message by filling the form

02 99 32 43 86

Financial simulation
Your loan amount Loan amount
Your loan period Loan period
Interest rate before negotiation Interest rates
Loan amount
Loan period
Monthly payments

 Reload Contact us

Biens similaires

A B C D E F G high performance housing extremely inefficient housing Not required
A B C D E F G very high CO2 emissions low CO2 emissions Not required
Affichage :