Skip to main content

Buy Apartment 2 room(s) 44 m2

231 000 €
Rennes
(
35000
)
60454-A102

By registering on Cabinet Moraine website, you will benefit from numerous additional services. Registration is completely free and does not commit you to anything.

Log in
2
Rooms
1
Bedroom
44m²
Surface

Property description

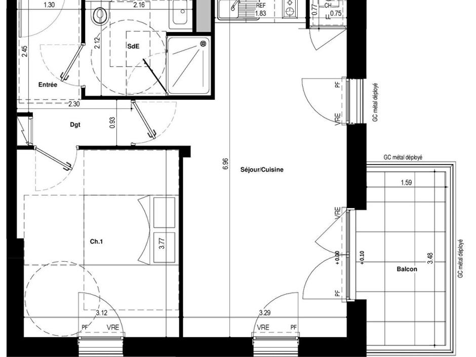
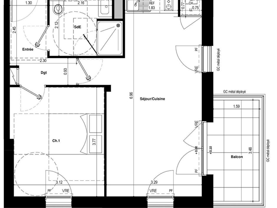
COURROUZE / ST JACQUES - 500 meters from the metro - 2-room apartment 44.04sqm South - 1st floor - elevator - balcony 5.53sqm Discover this 2-room apartment with a surface area of 44.04sqm, located on the 1st floor with elevator of a modern residence with the latest 2020 standards, 500 meters from the metro and transport. Located in the heart of a dynamic district, it offers a pleasant living environment with immediate access to services and infrastructure. Its strategic location guarantees optimal mobility thanks to the proximity of metro line B, bus lines and cycle paths. Bathed in light thanks to its southern exposure, this apartment consists of an entrance hall, a living room with open kitchen opening onto a 5.53 sqm balcony, a bedroom and a bathroom with WC. Don't miss this ideal opportunity for an investment or a first acquisition, combining comfort, modernity and practicality. Contact us today for more information! Promoter price - Reduced notary fees. Information on the risks to which this property is exposed is available on the Géorisques website: www.georisques.gouv.fr. Non-contractual photos, suggestions for developments
Condominiums of 24 units. Annual expenses : 648 euros.

Energy expenditure

A B C D E F G high performance housing extremely inefficient housing Not required
A B C D E F G very high CO2 emissions low CO2 emissions Not required

Location of property

Contactez-nous

Contact an advisor by phone or
leave us a message by filling the form

02 99 32 43 86

Financial simulation
Your loan amount Loan amount
Your loan period Loan period
Interest rate before negotiation Interest rates
Loan amount
Loan period
Monthly payments

 Reload Contact us

Biens similaires

A B C D E F G high performance housing extremely inefficient housing Not required
A B C D E F G very high CO2 emissions low CO2 emissions Not required
Affichage :