Buy House 4 room(s) 85 m2
By registering on Cabinet Moraine website, you will benefit from numerous additional services. Registration is completely free and does not commit you to anything.
Log inProperty description
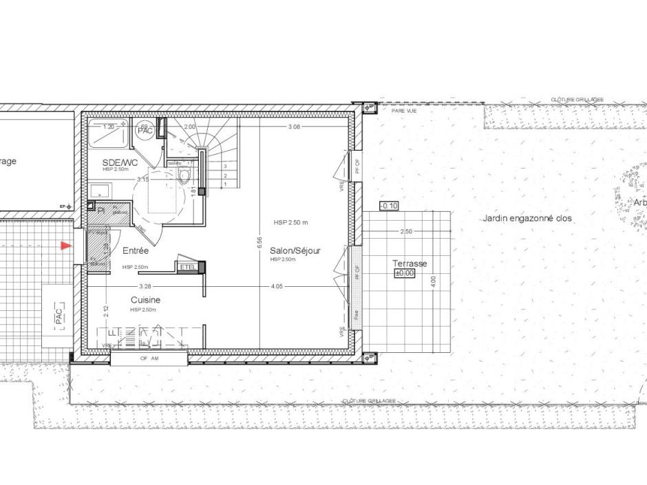
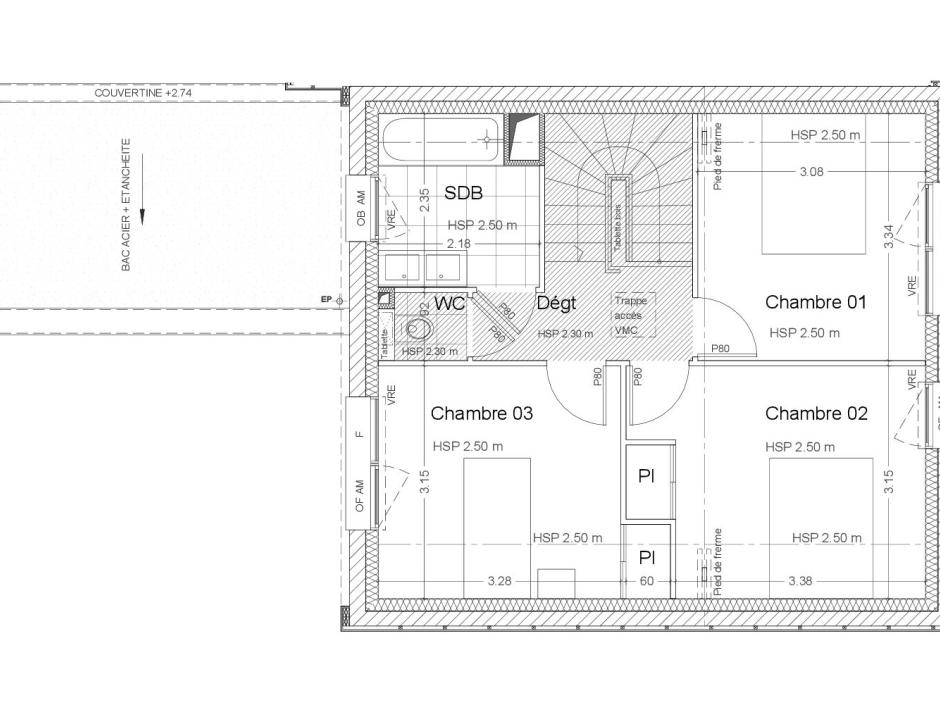
PLEURTUIT - 4-room house 85.75sqm - South - 10sqm terrace and 220sqm land - garage and parking In Pleurtuit, ideally located in a residential area, close to the town center, shops, amenities and transport, 4-room house of 85.75sqm with 10sqm terrace and 109.35sqm garden bathed in light thanks to its southern exposure, it consists of: an entrance with cupboard, a bright living room, a kitchen, giving access to the terrace and the garden, a shower room with wc. Upstairs, hallway, three bedrooms, cupboards, bathroom with double sink, separate wc. Closed garage and outdoor parking in front of the house. Promoter price - reduced notary fees - Information on the risks to which this property is exposed is available on the Géorisques website: www.georisques.gouv.fr. Non-contractual photos - Development suggestions
Condominiums of 37 units. Annual expenses : 878 euros.