Skip to main content

Buy Apartment 2 room(s) 48 m2

199 000 €
Saint-Erblon
(
35230
)
6029-05

By registering on Cabinet Moraine website, you will benefit from numerous additional services. Registration is completely free and does not commit you to anything.

Log in
2
Rooms
1
Bedroom
48m²
Surface

Property description

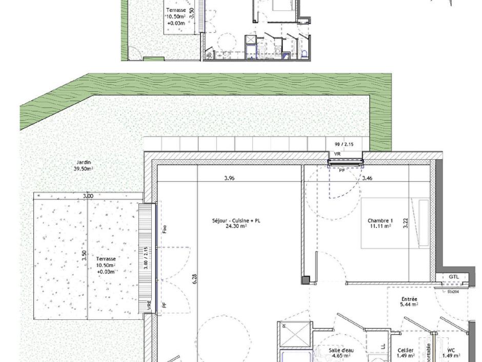
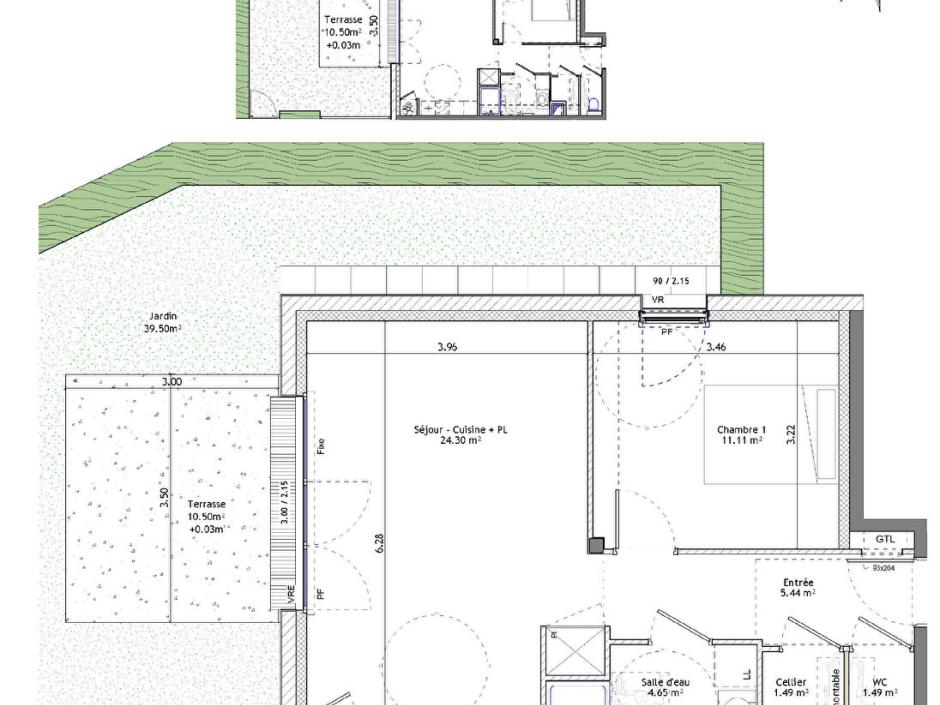
Saint Erblon - 2-room apartment 48.48sqm South West - garden level - 10.50sqm terrace - 39.50sqm garden - elevator - parking Ideally located in a residence with contemporary architecture respecting the latest RE2020 standards, this 2-room apartment of 48.48 sqm offers a serene and green living environment, close to amenities, public transport and all urban facilities. Located on the garden level and facing South-West, it includes an entrance with cupboard, a living room with open kitchen, giving access to the outside: a pleasant 10.40sqm terrace and a 39.50sqm garden, a bedroom, a shower room, separate toilet, storeroom. This property also benefits from an outdoor parking space. Promoter price - reduced notary fees - Information on the risks to which this property is exposed is available on the Géorisques website: www.georisques.gouv.fr. Non-contractual photos - Development suggestions
Condominiums of 19 units (No proceedings in progress). Annual expenses : 691 euros.

Energy expenditure

A B C D E F G high performance housing extremely inefficient housing Not required
A B C D E F G very high CO2 emissions low CO2 emissions Not required

Location of property

Contactez-nous

Contact an advisor by phone or
leave us a message by filling the form

02 99 32 43 86

Financial simulation
Your loan amount Loan amount
Your loan period Loan period
Interest rate before negotiation Interest rates
Loan amount
Loan period
Monthly payments

 Reload Contact us

Biens similaires

A B C D E F G high performance housing extremely inefficient housing Not required
A B C D E F G very high CO2 emissions low CO2 emissions Not required
Affichage :