Skip to main content

Buy Apartment 3 room(s) 66 m2

268 000 €
Orgères
(
35230
)
60342-12

By registering on Cabinet Moraine website, you will benefit from numerous additional services. Registration is completely free and does not commit you to anything.

Log in
3
Rooms
2
Bedrooms
66m²
Surface

Property description

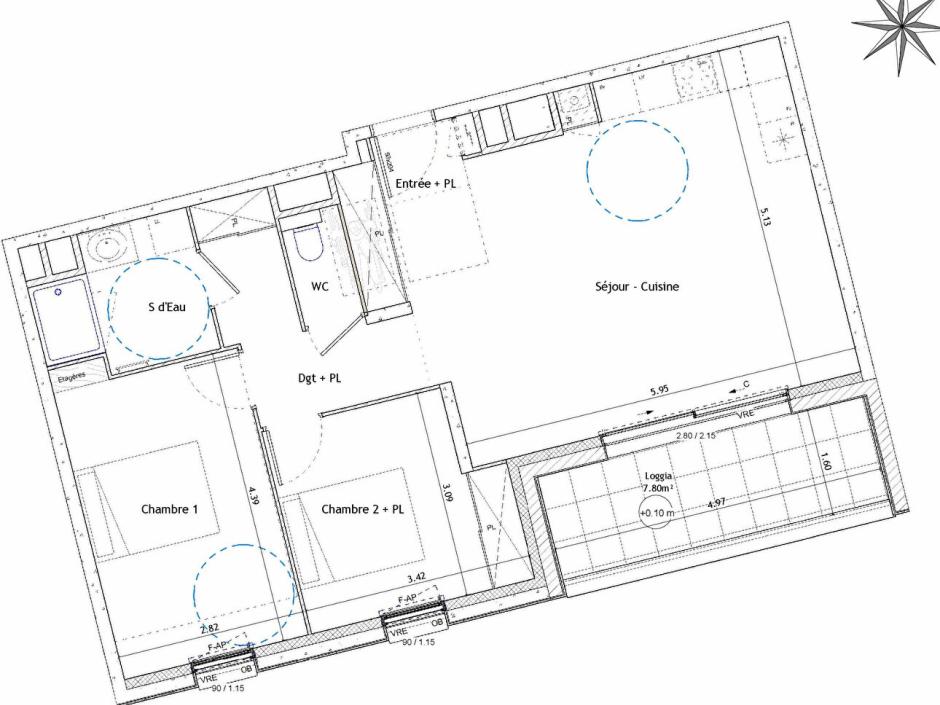
ORGERES - 2-Bedroom Apartment 66.41sqm South-Facing - 1st Floor - Elevator - 7.80sqm Loggia - Secure Underground Garage. In Orgères, this 66.41sqm south-facing, 2-bedroom apartment is nestled on the 1st floor of an elegant residence. Equipped with an elevator and secure access, this residence enjoys a prime location, close to shops, services, and everyday amenities. With its south-facing orientation, this light-filled apartment comprises an entrance hall with a closet, a living room with an open-plan kitchen, extending onto a 7.80sqm loggia, a hallway with a closet, two bedrooms (one with a closet), a shower room, and a separate toilet. A private, secure underground garage completes this property. Developer price - Reduced notary fees - Compliant with RT2020 standards. Information on any potential risks associated with this property can be found on the Géorisques website: www.georisques.gouv.fr
Condominiums of 17 units. Annual expenses : 950 euros.

Energy expenditure

A B C D E F G high performance housing extremely inefficient housing Not required
A B C D E F G very high CO2 emissions low CO2 emissions Not required

Location of property

Contactez-nous

Contact an advisor by phone or
leave us a message by filling the form

02 99 32 43 86

Financial simulation
Your loan amount Loan amount
Your loan period Loan period
Interest rate before negotiation Interest rates
Loan amount
Loan period
Monthly payments

 Reload Contact us

Biens similaires

A B C D E F G high performance housing extremely inefficient housing Not required
A B C D E F G very high CO2 emissions low CO2 emissions Not required
Affichage :