Skip to main content

Buy Apartment 2 room(s) 48 m2

207 000 €
Orgères
(
35230
)
60337-25

By registering on Cabinet Moraine website, you will benefit from numerous additional services. Registration is completely free and does not commit you to anything.

Log in
2
Rooms
1
Bedroom
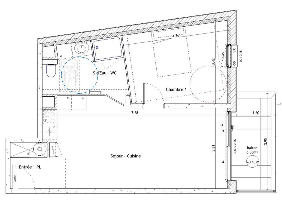
48m²
Surface

Property description

ORGÈRES - 2-room apartment 48.66sqm South - 2nd floor - elevator - balcony 6.30sqm - secure underground parking. Perfectly located south of Rennes Métropole, in the charming town of Orgères, this 48.66 sqm apartment is located on the 2nd floor of a modern and elegant residence. With its elevator and secure access, this residence benefits from a strategic location, close to shops, services, and amenities, offering a living environment combining practicality and comfort on a daily basis. Facing due south, this bright 2-room apartment offers: An entrance with a closet, A living room with open kitchen, giving access to the 6.30sqm balcony. A bedroom, a bathroom with toilet. A private outdoor parking space completes this property. Whether you are looking for a friendly living environment or a sustainable investment, this residence combines comfort and serenity in a town where life is good. Promoter price - Reduced notary fees - RT2020 standards Information on the risks to which this property is exposed is available on the Géorisques website: www.georisques.gouv.fr
Condominiums of 17 units (No proceedings in progress). Annual expenses : 691 euros.

Energy expenditure

A B C D E F G high performance housing extremely inefficient housing Not required
A B C D E F G very high CO2 emissions low CO2 emissions Not required

Location of property

Contactez-nous

Contact an advisor by phone or
leave us a message by filling the form

02 99 32 43 86

Financial simulation
Your loan amount Loan amount
Your loan period Loan period
Interest rate before negotiation Interest rates
Loan amount
Loan period
Monthly payments

 Reload Contact us

Biens similaires

A B C D E F G high performance housing extremely inefficient housing Not required
A B C D E F G very high CO2 emissions low CO2 emissions Not required
Affichage :