Aller au contenu principal

Achat Appartement 5 pièce(s) 113 m2

610 141 €
Rennes
(
35000
)
60721-A504

En vous inscrivant sur le site du cabinet Moraine vous bénéficierez de nombreux services complémentaires. L'inscription est totalement gratuite et ne vous engage rien.

Se connecter
5
Rooms
3
Chambre(s)
1
Salle(s) de bain
113m²
Surface

Présentation du bien

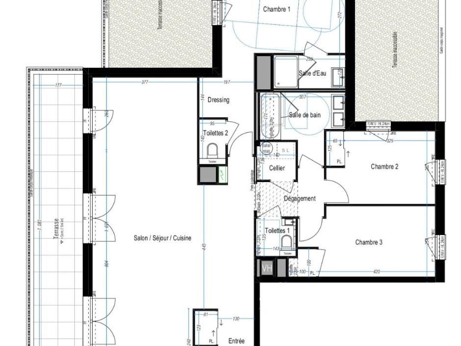
RENNES - Jeanne d'Arc - Appartement 5 pièces Ouest - 113.26m² - 5ème étage - ascenseur - terrasse 19.37m² - garage en sous-sol sécurisé.
Situé dans le quartier de Jeanne d'Arc, ce vaste appartement de 5 pièces profite d'un emplacement privilégié à deux pas du métro, permettant un accès rapide au centre-ville (Sainte-Anne en 10 minutes, Gare de Rennes en 15 minutes). Commerces, écoles et transports en commun sont à proximité immédiate, tandis que plusieurs parcs se trouvent à moins de 500 mètres, idéaux pour des moments de détente. Au 5? étage avec ascenseur, cet appartement lumineux de 113,26 m², exposé ouest, offre un cadre de vie confortable. Il se compose d'une entrée avec placard, d'un vaste séjour avec cuisine ouverte de 50 m², prolongé par une belle terrasse de 19,37 m². Vous y trouverez deux dégagements, trois chambres, un dressing, un cellier, une salle de bains, une salle d'eau, ainsi que deux WC indépendants et plusieurs espaces de rangement. Un garage sécurisé en sous-sol complète ce bien. Atout supplémentaire, le chauffage est assuré par le réseau de chaleur urbain, une solution à la fois économique et écologique. N'attendez plus, contactez-nous dès maintenant pour en savoir plus et réserver votre futur appartement. Prix taux de tva à 5.5% - Conditions nous consulter.
Prix promoteur - Les informations sur les risques auxquels ce bien est exposé sont disponibles sur le site Géorisques : www.georisques.gouv.fr. Photos non contractuelles - Suggestions d'aménagements
Copropriété de 43 lots - dont 43 lots habitation.

Charges annuelles : 1627 euros.

Dépenses énergétiques

A B C D E F G logement très performant logement extrêmement peu performant Non requis
A B C D E F G emissions de CO₂ très importantes peu d'émission de CO₂ Non requis

Localisation du bien

Contactez-nous

Contactez un conseiller par téléphone ou
laissez-nous un message via notre formulaire.

02 99 32 43 86

Simulation financière
Montant de votre prêt Montant du prêt
Durée de votre prêt Durée du prêt
Taux d'intérêt avant négociation Taux d'intérêts
Montant du prêt
Durée du prêt
Mensualités

 Recharger Contactez-nous

Biens similaires

A B C D E F G logement très performant logement extrêmement peu performant Non requis
A B C D E F G emissions de CO₂ très importantes peu d'émission de CO₂ Non requis
Affichage :