Aller au contenu principal

Achat Appartement 2 pièce(s) 44 m2

231 000 €
Rennes
(
35000
)
60454-A102

En vous inscrivant sur le site du cabinet Moraine vous bénéficierez de nombreux services complémentaires. L'inscription est totalement gratuite et ne vous engage rien.

Se connecter
2
Rooms
1
Chambre(s)
44m²
Surface

Présentation du bien

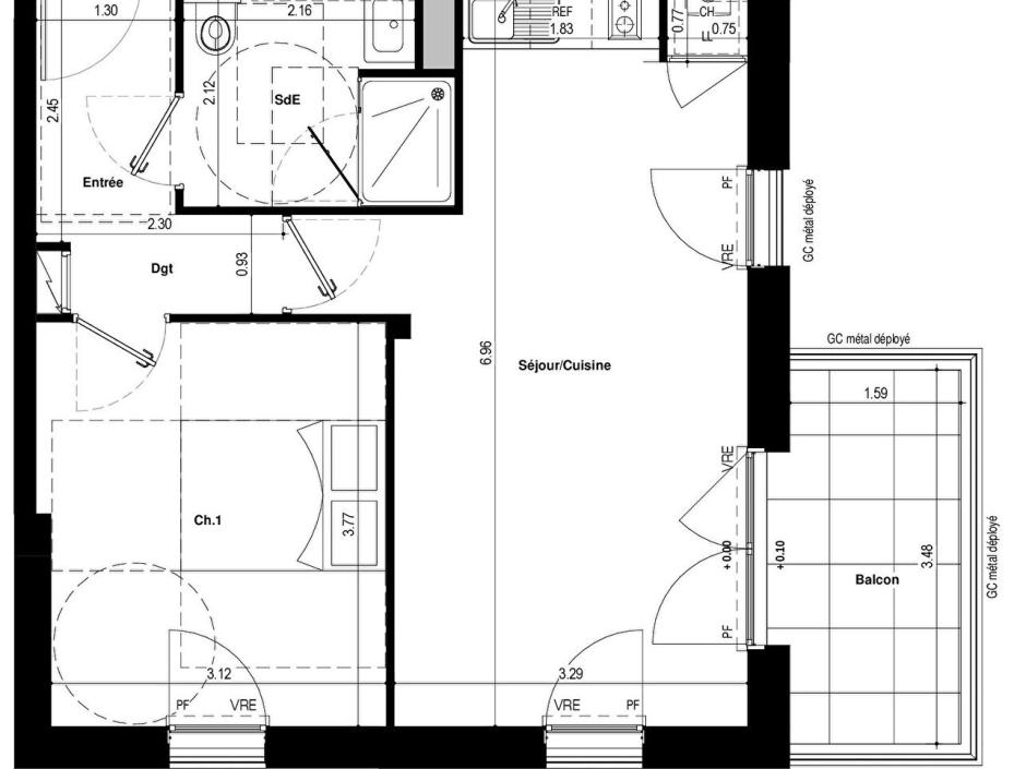
COURROUZE / ST JACQUES - A 500 mètres du métro - Appartement 2 pièces 44.04m² Sud -1er étage - ascenseur - balcon 5.53m²
Découvrez cet appartement de 2 pièces d'une surface de 44.04m², situé au 1er étage avec ascenseur d'une résidence moderne aux dernières normes 2020, à 500 mètres du métro et des transports. Implanté au coeur d'un quartier dynamique, il offre un cadre de vie agréable avec un accès immédiat aux services et infrastructures. Sa situation stratégique garantit une mobilité optimale grâce à la proximité de la ligne B du métro, des lignes de bus et des pistes cyclables. Baigné de lumière grâce à son exposition Sud, cet appartement se compose d'une entrée, d'un séjour avec cuisine ouverte donnant sur un balcon de 5,53 m², d'une chambre et d'une salle d'eau avec WC. Ne manquez pas cette opportunité idéale pour un investissement ou une première acquisition, alliant confort, modernité et praticité. Contactez-nous dès aujourd'hui pour plus d'informations ! Prix promoteur - Frais de notaire réduits. Les informations relatives aux risques auxquels ce bien est exposé sont disponibles sur le site Géorisques : www.georisques.gouv.fr. Photos non contractuelles, suggestions d'aménagements
Copropriété de 24 lots - dont 24 lots habitation.

Charges annuelles : 648 euros.

Dépenses énergétiques

A B C D E F G logement très performant logement extrêmement peu performant Non requis
A B C D E F G emissions de CO₂ très importantes peu d'émission de CO₂ Non requis

Localisation du bien

Contactez-nous

Contactez un conseiller par téléphone ou
laissez-nous un message via notre formulaire.

02 99 32 43 86

Simulation financière
Montant de votre prêt Montant du prêt
Durée de votre prêt Durée du prêt
Taux d'intérêt avant négociation Taux d'intérêts
Montant du prêt
Durée du prêt
Mensualités

 Recharger Contactez-nous

Biens similaires

A B C D E F G logement très performant logement extrêmement peu performant Non requis
A B C D E F G emissions de CO₂ très importantes peu d'émission de CO₂ Non requis
Affichage :