Skip to main content

Buy Apartment 2 room(s) 50 m2

239 000 €
Vitré
(
35500
)
60789-B501

By registering on Cabinet Moraine website, you will benefit from numerous additional services. Registration is completely free and does not commit you to anything.

Log in
2
Rooms
1
Bedroom
50m²
Surface

Property description

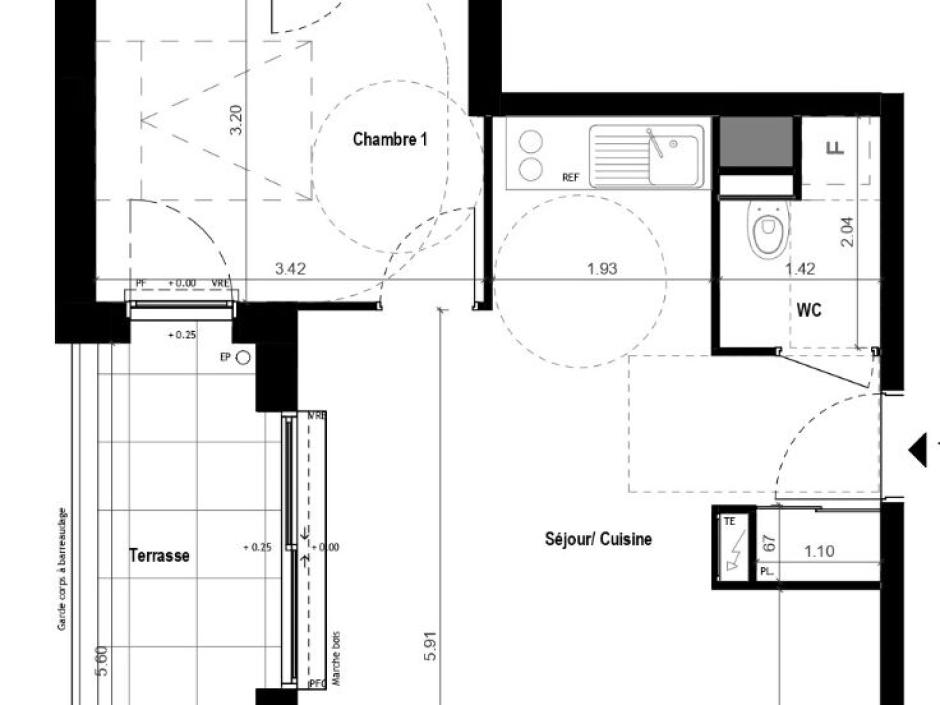
VITRÉ - 2-room apartment of 50.73sqm - 5th floor - elevator - 8.71sqm terrace - secure underground parking. Ideally located in the heart of the city, close to shops, amenities and transport, this elegant 2-room apartment is nestled on the 5th floor of a contemporary residence with high-quality fittings, offering a privileged living environment. With a surface area of 50.73 sqm, it consists of an entrance hall with closet, a large, bright living room of 32.72 sqm with open kitchen, extended by a pleasant 8.71 sqm terrace. A bedroom, a bathroom and a separate toilet complete this property. Secure underground parking is included. Promoter price - Reduced notary fees. Information on the risks to which this property is exposed is available on the Géorisques website: www.georisques.gouv.fr. Non-contractual photos - Suggestions for developments.
Condominiums of 65 units (No proceedings in progress). Annual expenses : 720 euros.

Energy expenditure

A B C D E F G high performance housing extremely inefficient housing Not required
A B C D E F G very high CO2 emissions low CO2 emissions Not required

Location of property

Contactez-nous

Contact an advisor by phone or
leave us a message by filling the form

02 99 32 43 86

Financial simulation
Your loan amount Loan amount
Your loan period Loan period
Interest rate before negotiation Interest rates
Loan amount
Loan period
Monthly payments

 Reload Contact us

Biens similaires

A B C D E F G high performance housing extremely inefficient housing Not required
A B C D E F G very high CO2 emissions low CO2 emissions Not required
Affichage :