Buy Apartment 5 room(s) 99 m2
By registering on Cabinet Moraine website, you will benefit from numerous additional services. Registration is completely free and does not commit you to anything.
Log inProperty description
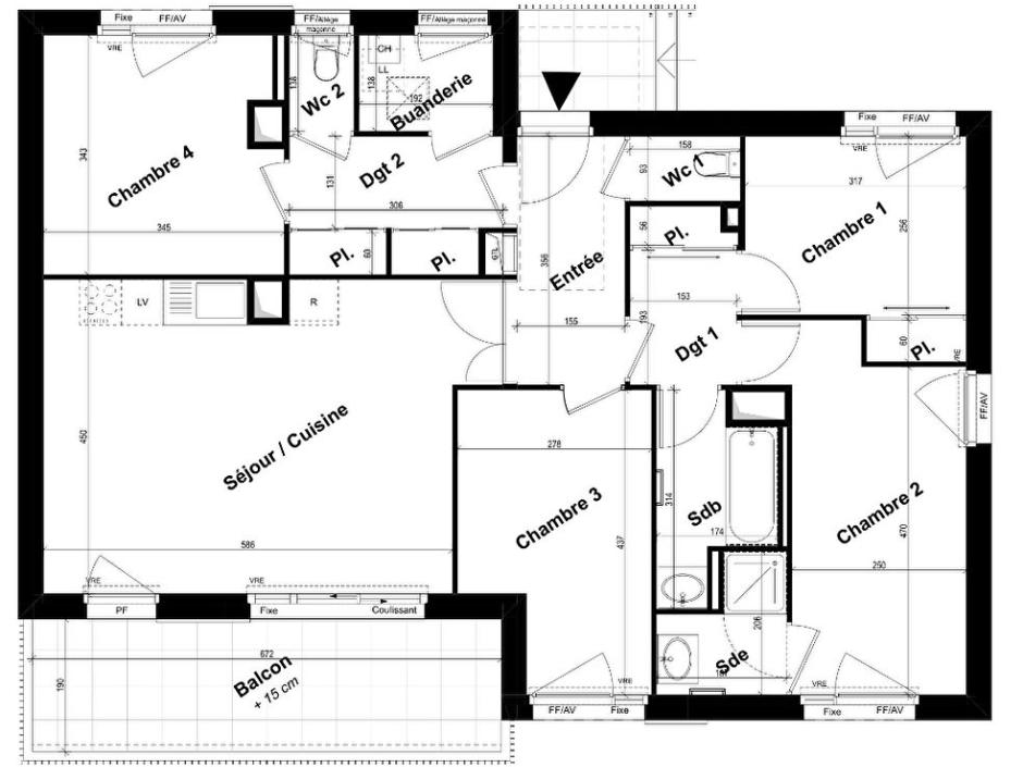
SAINT MALO - 5 room apartment of 99m² South West - 1st floor - balcony 12.77m² - garage and parking Located in SAINT MALO, close to amenities and services, in a new luxury residence, with quality services and comfort of the latest RT2012 standards benefiting with a good geographical location, located on the 1st floor, 5-room apartment of 99.40m², facing South West, comprising: an entrance with cupboard, living room opening onto a 12.77m² balcony, open kitchen, 4 bedrooms, bathroom , bathroom, wcs, cupboards, laundry room, garage and private parking. Developer price - reduced notary fees - latest RT2012 standards www.immobilier-moraine.fr 02 99 32 43 86
Condominiums of 48 units (No proceedings in progress). Annual expenses : 1425 euros.