Skip to main content

Buy Apartment 3 room(s) 68 m2

267 000 €
Saint-Erblon
(
35230
)
6042-17

By registering on Cabinet Moraine website, you will benefit from numerous additional services. Registration is completely free and does not commit you to anything.

Log in
3
Rooms
2
Bedrooms
68m²
Surface

Property description

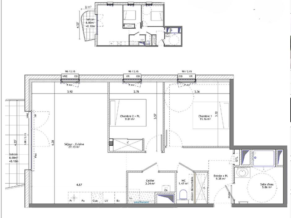
Saint-Erblon - 3-room apartment of 68.12 sqm with balcony, South-West exposure, on the 1st floor with elevator and secure garage Located in a contemporary residence compliant with RE2020 standards, this apartment offers a peaceful and green living environment, close to amenities and transport. With a surface area of 68.12 sqm, it is located on the first floor and benefits from a South-West orientation. This property consists of an entrance hall with closet, a hallway, a bright living room with open kitchen opening onto an 8 sqm balcony, two bedrooms, one with closet, a shower room, separate toilet and a storeroom. A secure underground garage completes this lot. - Information on the risks to which this property is exposed is available on the Géorisques website: www.georisques.gouv.fr. Non-contractual photos - Suggestions for layouts
Condominiums of 19 units (No proceedings in progress). Annual expenses : 979 euros.

Energy expenditure

A B C D E F G high performance housing extremely inefficient housing Not required
A B C D E F G very high CO2 emissions low CO2 emissions Not required

Location of property

Contactez-nous

Contact an advisor by phone or
leave us a message by filling the form

02 99 32 43 86

Financial simulation
Your loan amount Loan amount
Your loan period Loan period
Interest rate before negotiation Interest rates
Loan amount
Loan period
Monthly payments

 Reload Contact us

Biens similaires

A B C D E F G high performance housing extremely inefficient housing Not required
A B C D E F G very high CO2 emissions low CO2 emissions Not required
Affichage :