Skip to main content

Buy Apartment 3 room(s) 65 m2

262 000 €
Saint-Erblon
(
35230
)
6042-03

By registering on Cabinet Moraine website, you will benefit from numerous additional services. Registration is completely free and does not commit you to anything.

Log in
3
Rooms
2
Bedrooms
65m²
Surface

Property description

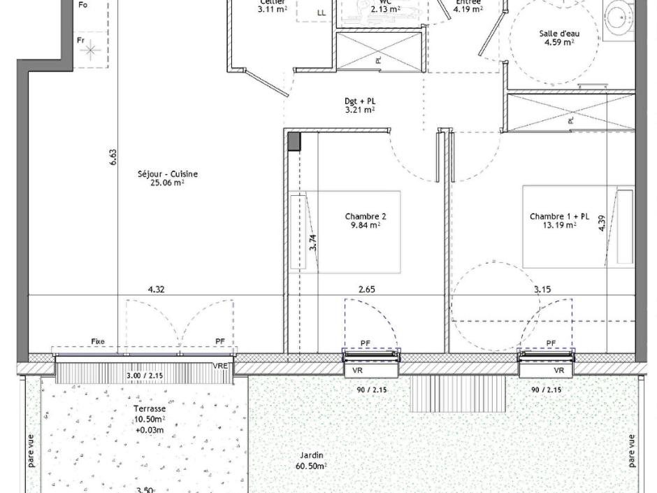
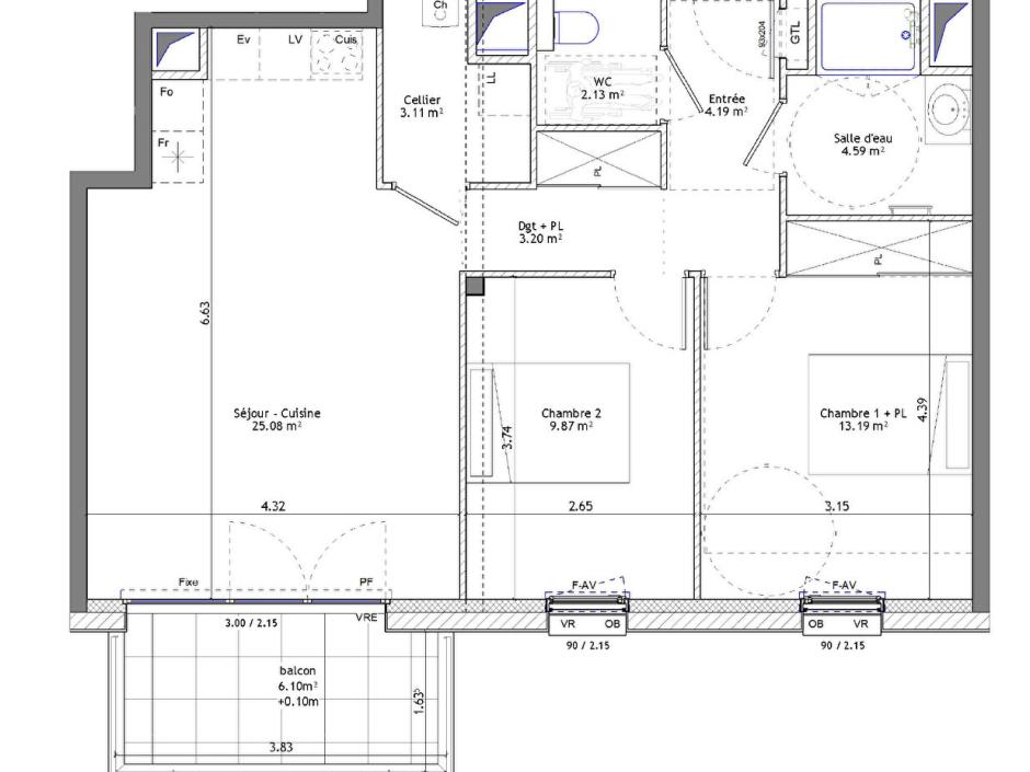
Saint Erblon - 3-room apartment 65.32sqm South - ground floor - terrace 10.50sqm - garden 60.50sqm - secure underground parking. Nestled in a contemporary residence meeting RE2020 standards, this apartment offers a serene and green living environment, while remaining close to amenities and transport. With a surface area of 65.32 sqm, this ground floor apartment benefits from a south-facing orientation, bathed in natural light. It opens onto an entrance with a closet, leading to a large, bright living room with an open kitchen, extended by a 10.50 sqm terrace and a 60.50 sqm private garden. The sleeping area consists of two bedrooms, one of which has a closet, as well as a shower room, separate toilet and a storeroom. Secure underground parking completes this property. - Information on the risks to which this property is exposed is available on the Géorisques website: www.georisques.gouv.fr. Non-contractual photos - Suggestions for developments
Condominiums of 19 units (No proceedings in progress). Annual expenses : 950 euros.

Energy expenditure

A B C D E F G high performance housing extremely inefficient housing Not required
A B C D E F G very high CO2 emissions low CO2 emissions Not required

Location of property

Contactez-nous

Contact an advisor by phone or
leave us a message by filling the form

02 99 32 43 86

Financial simulation
Your loan amount Loan amount
Your loan period Loan period
Interest rate before negotiation Interest rates
Loan amount
Loan period
Monthly payments

 Reload Contact us

Biens similaires

A B C D E F G high performance housing extremely inefficient housing Not required
A B C D E F G very high CO2 emissions low CO2 emissions Not required
Affichage :