Skip to main content

Buy Apartment 2 room(s) 41 m2

181 000 €
Saint-Erblon
(
35230
)
6029-13

By registering on Cabinet Moraine website, you will benefit from numerous additional services. Registration is completely free and does not commit you to anything.

Log in
2
Rooms
1
Bedroom
41m²
Surface

Property description

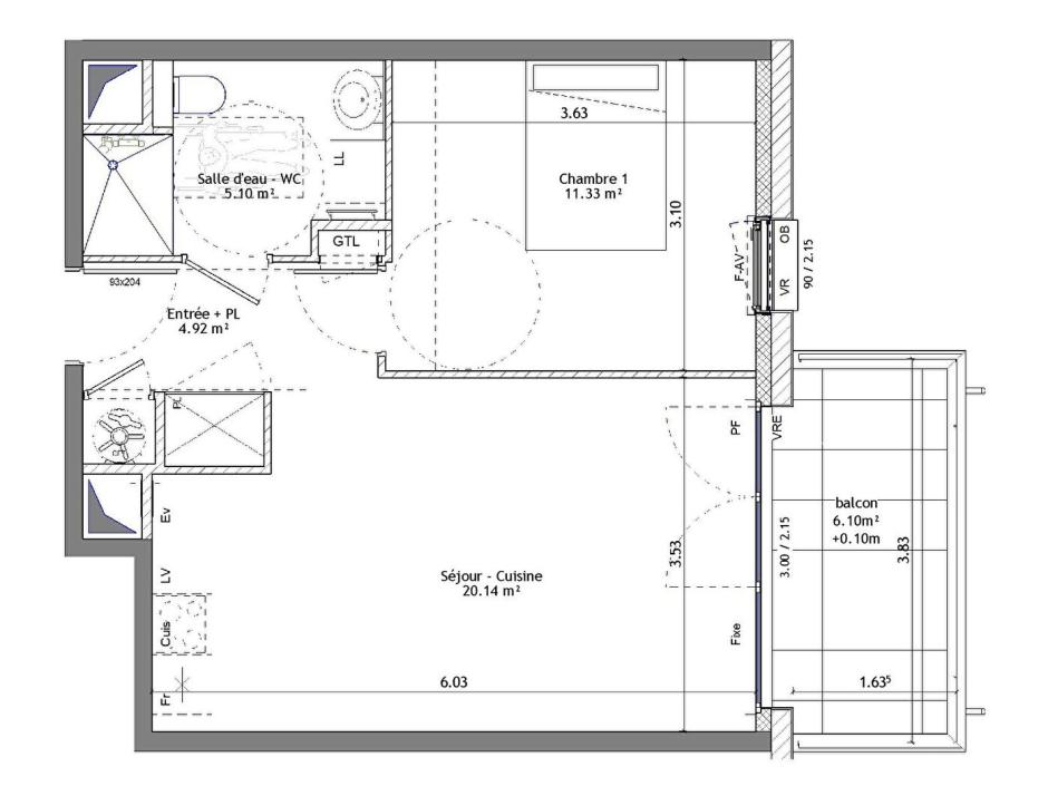
Saint Erblon - 2-room apartment 41.49sqm - 1st floor - 6.10sqm balcony - elevator - parking. Ideally located, in a contemporary architecture residence, to the latest RE2020 standards, in a quiet and green environment, close to amenities, transport ... 2-room apartment of 41.49sqm, on the 1st floor with elevator, comprising: an entrance with closet, a living room with kitchen giving access to a 6.10sqm balcony, a bedroom, shower room with toilet. Outdoor parking. Promoter price - reduced notary fees - Information on the risks to which this property is exposed is available on the Géorisques website: www.georisques.gouv.fr. Non-contractual photos - Suggestions for layouts
Condominiums of 19 units (No proceedings in progress). Annual expenses : 619 euros.

Energy expenditure

A B C D E F G high performance housing extremely inefficient housing Not required
A B C D E F G very high CO2 emissions low CO2 emissions Not required

Location of property

Contactez-nous

Contact an advisor by phone or
leave us a message by filling the form

02 99 32 43 86

Financial simulation
Your loan amount Loan amount
Your loan period Loan period
Interest rate before negotiation Interest rates
Loan amount
Loan period
Monthly payments

 Reload Contact us

Biens similaires

A B C D E F G high performance housing extremely inefficient housing Not required
A B C D E F G very high CO2 emissions low CO2 emissions Not required
Affichage :