Skip to main content

Buy Apartment 2 room(s) 44 m2

235 000 €
Rennes
(
35000
)
60453-A101

By registering on Cabinet Moraine website, you will benefit from numerous additional services. Registration is completely free and does not commit you to anything.

Log in
2
Rooms
1
Bedroom
44m²
Surface

Property description

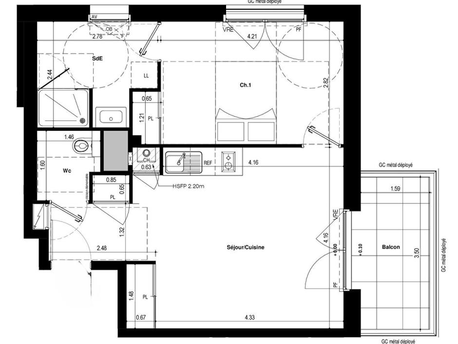
COURROUZE / ST JACQUES - 2-room apartment, 44.38 sq m, south-facing, 1st floor, elevator, 5.57 sq m balcony. Just 500 meters from the metro and public transport, discover this 2-room apartment with a surface area of 44.38 sq m, located on the 1st floor with elevator access in a contemporary building meeting RT 2020 standards. Situated in the heart of a vibrant neighborhood, it offers a pleasant living environment with immediate access to services and infrastructure. Its location guarantees optimal mobility thanks to the proximity of metro line B, bus lines, and cycle paths. Bathed in light thanks to its south-facing aspect, this apartment comprises an entrance hall with a closet, a living room with an open-plan kitchen opening onto a 5.57 sq m balcony, a bedroom with a closet, a private shower room, and a separate toilet. Don't miss this ideal opportunity for investment or a first-time purchase. Contact us today for more information! Developer price - Reduced notary fees. Information regarding the risks to which this property is exposed is available on the Géorisques website: www.georisques.gouv.fr. Photos are for illustrative purposes only and are not contractual.
Condominiums of 24 units. Annual expenses : 648 euros.

Energy expenditure

A B C D E F G high performance housing extremely inefficient housing Not required
A B C D E F G very high CO2 emissions low CO2 emissions Not required

Location of property

Contactez-nous

Contact an advisor by phone or
leave us a message by filling the form

02 99 32 43 86

Financial simulation
Your loan amount Loan amount
Your loan period Loan period
Interest rate before negotiation Interest rates
Loan amount
Loan period
Monthly payments

 Reload Contact us

Biens similaires

A B C D E F G high performance housing extremely inefficient housing Not required
A B C D E F G very high CO2 emissions low CO2 emissions Not required
Affichage :