Skip to main content

Buy Apartment 4 room(s) 83 m2

420 000 €
Bruz
(
35170
)
6223-22

By registering on Cabinet Moraine website, you will benefit from numerous additional services. Registration is completely free and does not commit you to anything.

Log in
4
Rooms
3
Bedrooms
83m²
Surface

Property description

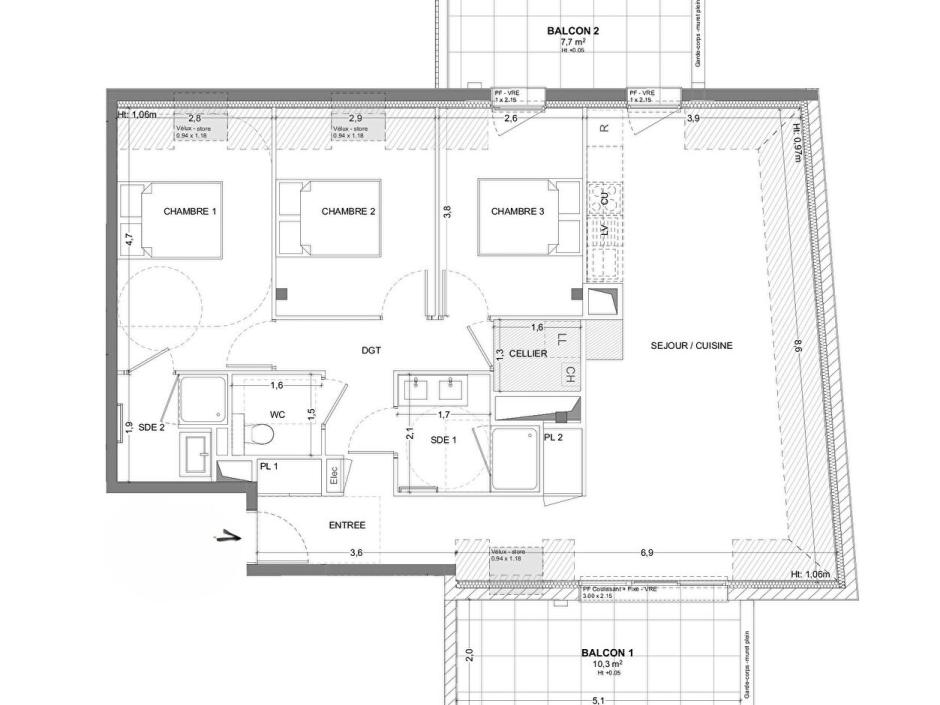
Bruz - 4-room apartment, 83.97 sq m living space - South-facing - Total area: 97.25 sq m - 2nd floor - elevator - 18 sq m balconies - secure underground garage. Just 9 km southwest of Rennes, close to the city center, shops, and amenities, discover this 4-room apartment located on the second floor of a modern building with an elevator, compliant with RT2020 environmental standards, offering high energy and acoustic performance. With a living area of 83.97 sq m (for a total total area of 97.25 sq m), this south-facing apartment comprises an entrance hall with a closet, a hallway, a spacious living room with an open-plan kitchen leading to two balconies of 10.27 sq m and 7.74 sq m. The sleeping area includes a hallway, three bedrooms, two shower rooms, a separate toilet, and a storage room. A secure underground garage completes this property. In terms of transport, the location is ideal: the Bruz TER train station provides access to Rennes in just 10 minutes, the STAR bus lines facilitate local travel, and the proximity of Rennes Bretagne Airport further enhances the property's connectivity. Developer price - reduced notary fees. Information on the risks to which this property is exposed is available on the Géorisques website: www.georisques.gouv.fr.
Condominiums of 39 units. Annual expenses : 1200 euros.

Energy expenditure

A B C D E F G high performance housing extremely inefficient housing Not required
A B C D E F G very high CO2 emissions low CO2 emissions Not required

Location of property

Contactez-nous

Contact an advisor by phone or
leave us a message by filling the form

02 99 32 43 86

Financial simulation
Your loan amount Loan amount
Your loan period Loan period
Interest rate before negotiation Interest rates
Loan amount
Loan period
Monthly payments

 Reload Contact us

Biens similaires

A B C D E F G high performance housing extremely inefficient housing Not required
A B C D E F G very high CO2 emissions low CO2 emissions Not required
Affichage :