Skip to main content

Buy House 5 room(s) 118 m2

415 000 €
Chantepie
(
35135
)
6200-8-M2

By registering on Cabinet Moraine website, you will benefit from numerous additional services. Registration is completely free and does not commit you to anything.

Log in
5
Rooms
4
Bedrooms
1
Bathroom
118m²
Surface

Property description

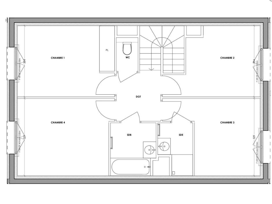
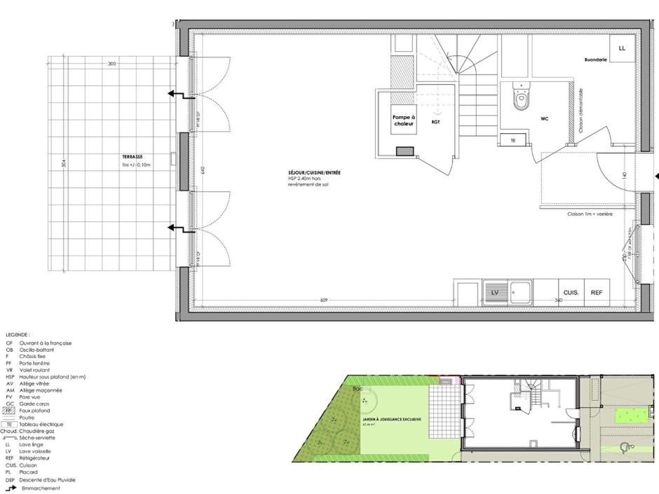
CHANTEPIE - 5-room house - 118.38sqm - South - terrace and garden 62.46 sqm - parking Located just 12 minutes from Rennes city center, and just 1.3km from the center of Chantepie, close to shops, services, schools, public transport (bus and quick access to the Rennes ring road), green spaces and sports facilities. In a residential environment, 5-room house of 118.38sqm facing south, comprising: an entrance hall, large living room of 50sqm with open kitchen, access to a terrace and a garden, laundry room, storage, separate toilet. Upstairs, hallway, 4 bedrooms, bathroom, shower room, separate toilet. Separate toilet. Carport, closed bicycle storage and parking. Designed to be energy efficient, this house benefits from a heat pump, guaranteeing optimal comfort while reducing your energy consumption. Take advantage of the new PTZ 2025 and make your dream property a reality today! Promoter price - reduced notary fees - Information on the risks to which this property is exposed is available on the Géorisques website: www.georisques.gouv.fr. Non-contractual photos - Development suggestions

Energy expenditure

A B C D E F G high performance housing extremely inefficient housing Not required
A B C D E F G very high CO2 emissions low CO2 emissions Not required

Location of property

Contactez-nous

Contact an advisor by phone or
leave us a message by filling the form

02 99 32 43 86

Financial simulation
Your loan amount Loan amount
Your loan period Loan period
Interest rate before negotiation Interest rates
Loan amount
Loan period
Monthly payments

 Reload Contact us

Biens similaires

A B C D E F G high performance housing extremely inefficient housing Not required
A B C D E F G very high CO2 emissions low CO2 emissions Not required
Affichage :