Buy Office room(s) 42 m2
By registering on Cabinet Moraine website, you will benefit from numerous additional services. Registration is completely free and does not commit you to anything.
Log inProperty description
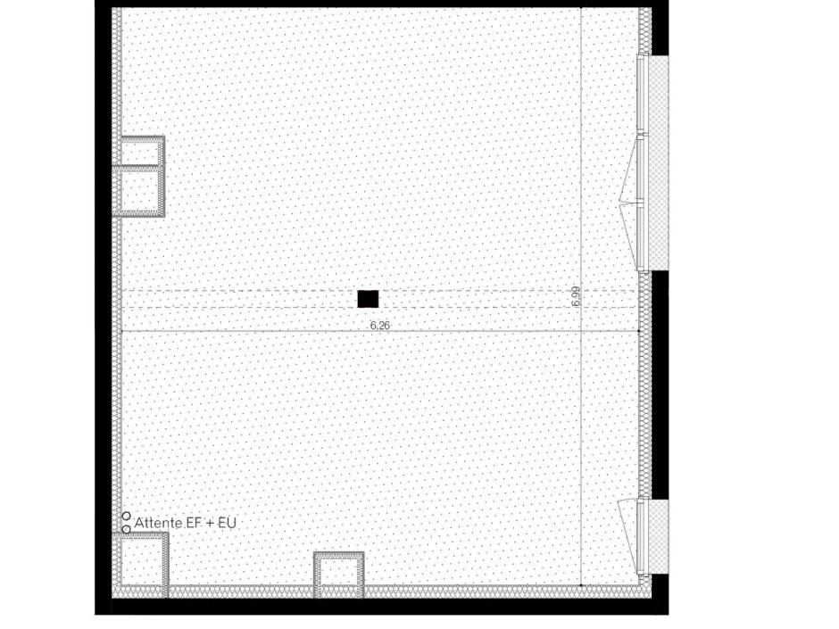
VITRE - 42.59sqm office space - ground floor - private parking Ideally located just 650 meters from the train station, this office benefits from a privileged location, in the immediate vicinity of shops and amenities. Nestled on the ground floor of a modern residence meeting the latest standards in force, it offers a comfortable and functional working environment. Secure underground parking is available to you. Offered at the developer price with reduced notary fees, this property is an excellent opportunity. Information on the risks to which this property is exposed is available on the Géorisques website: www.georisques.gouv.fr. Non-contractual photos, suggestions for developments
Condominiums of 32 units (No proceedings in progress). Annual expenses : 633 euros.