Skip to main content

Buy Office room(s) 42 m2

135 000 €
Vitré
(
35500
)
6011-BL1

By registering on Cabinet Moraine website, you will benefit from numerous additional services. Registration is completely free and does not commit you to anything.

Log in
42m²
Surface

Property description

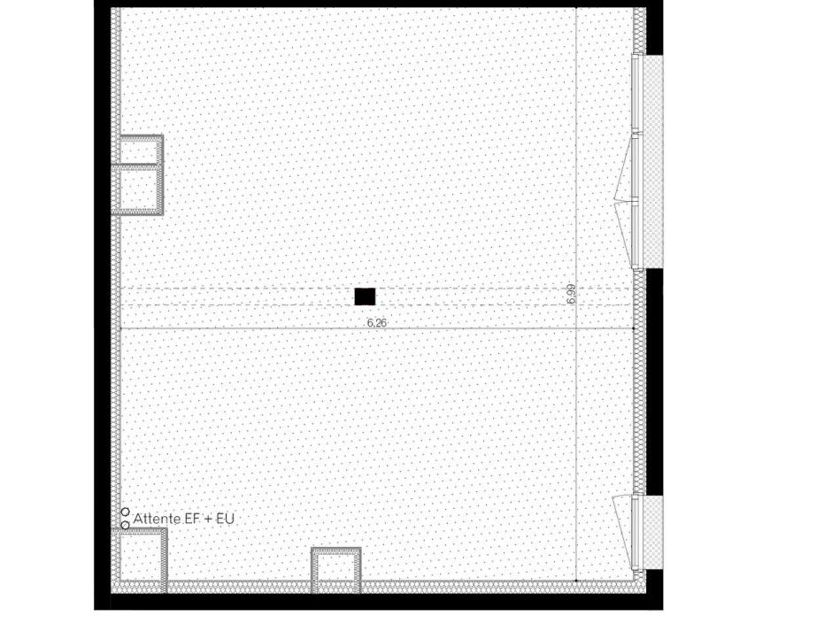
VITRE - 42.59sqm office space - ground floor - private parking Ideally located just 650 meters from the train station, this office benefits from a privileged location, in the immediate vicinity of shops and amenities. Nestled on the ground floor of a modern residence meeting the latest standards in force, it offers a comfortable and functional working environment. Secure underground parking is available to you. Offered at the developer price with reduced notary fees, this property is an excellent opportunity. Information on the risks to which this property is exposed is available on the Géorisques website: www.georisques.gouv.fr. Non-contractual photos, suggestions for developments
Condominiums of 32 units (No proceedings in progress). Annual expenses : 633 euros.

Energy expenditure

A B C D E F G high performance housing extremely inefficient housing Not required
A B C D E F G very high CO2 emissions low CO2 emissions Not required

Location of property

Contactez-nous

Contact an advisor by phone or
leave us a message by filling the form

02 99 32 43 86

Financial simulation
Your loan amount Loan amount
Your loan period Loan period
Interest rate before negotiation Interest rates
Loan amount
Loan period
Monthly payments

 Reload Contact us

Biens similaires

A B C D E F G high performance housing extremely inefficient housing Not required
A B C D E F G very high CO2 emissions low CO2 emissions Not required
Affichage :