Skip to main content

Buy Apartment 5 room(s) 102 m2

350 787 €
Saint-Malo
(
35400
)
73291D-35C

By registering on Cabinet Moraine website, you will benefit from numerous additional services. Registration is completely free and does not commit you to anything.

Log in
5
Rooms
3
Bedrooms
1
Bathroom
102m²
Surface

Property description

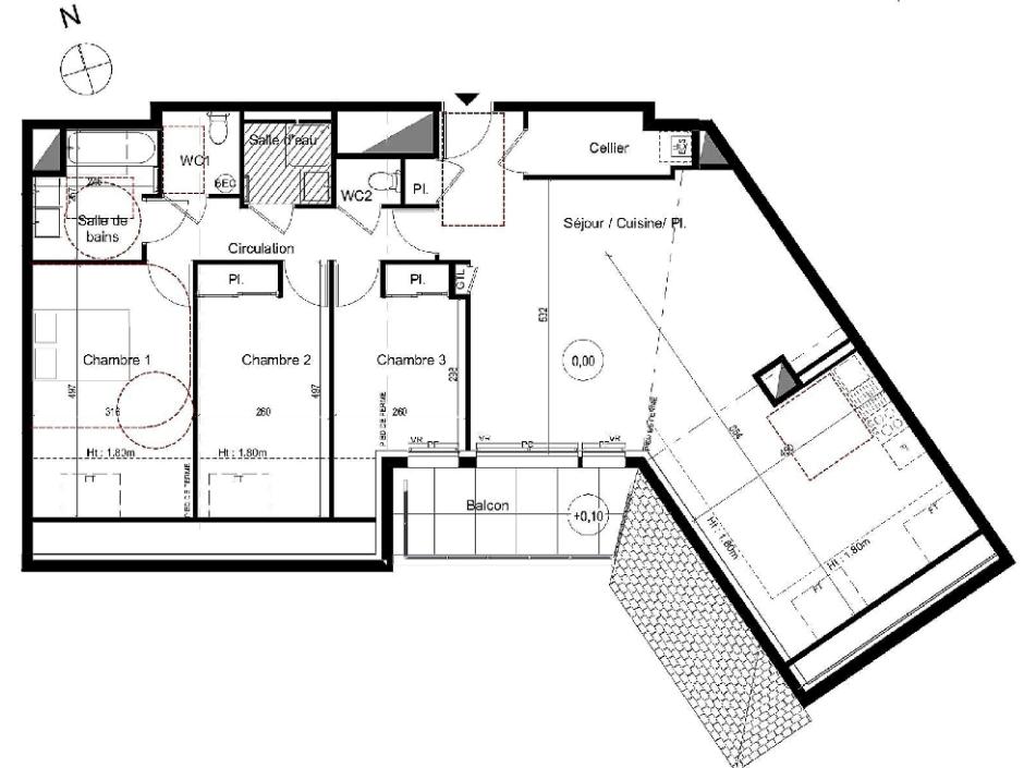
CABINET MORAINE - SAINT MALO - South 5 room apartment 3rd floor and top floor - 9.17 sqm balcony garage! and private parking Price VAT rate 5.5% - contact us for conditions. Close to St Servan, 1.6 km from the train station, not far from the beaches (1.9km) and the Intra-Muros, close to amenities and shops, quiet area, in a residence meeting the latest RT2012 standards, of contemporary architecture , 5-room apartment facing South comprising: an entrance with cupboard, living room with open kitchen, utility room, 3 bedrooms, bathroom, shower room, 2 separate toilets. Large balcony of 9.17sqm, Garage and private parking Reduced notary fees - promoter price - www.immobilier-moraine.fr 02 99 32 43 86
Condominiums of 19 units. Annual expenses : 1450 euros.

Energy expenditure

A B C D E F G high performance housing extremely inefficient housing Not required
A B C D E F G very high CO2 emissions low CO2 emissions Not required

Location of property

Contactez-nous

Contact an advisor by phone or
leave us a message by filling the form

02 99 32 43 86

Financial simulation
Your loan amount Loan amount
Your loan period Loan period
Interest rate before negotiation Interest rates
Loan amount
Loan period
Monthly payments

 Reload Contact us

Biens similaires

A B C D E F G high performance housing extremely inefficient housing Not required
A B C D E F G very high CO2 emissions low CO2 emissions Not required
Affichage :