Buy Apartment 3 room(s) 65 m2
By registering on Cabinet Moraine website, you will benefit from numerous additional services. Registration is completely free and does not commit you to anything.
Log inProperty description
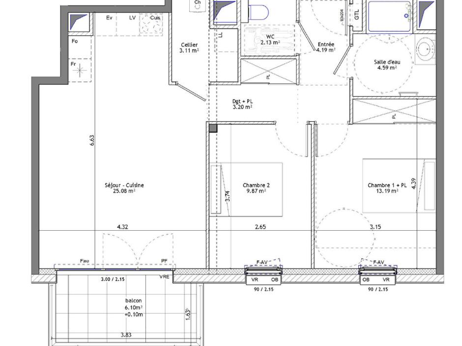
Saint-Erblon - 3-room apartment of 65.36sqm with balcony 6.10sqm on the 1st floor with elevator and secure garage Close to transport and amenities, in the town of Saint-Erblon, in a contemporary residence compliant with RT2020 standards, this apartment offers a calm and green living environment. With a surface area of 65.36 sqm, it is located on the first floor and benefits from a South-East orientation. This property consists of an entrance hall with closet, a bright living room with open kitchen opening onto a balcony of 6.10 sqm, two bedrooms, one with closet, a shower room, separate toilet and a storeroom. A secure underground garage completes this lot. - Information on the risks to which this property is exposed is available on the Géorisques website: www.georisques.gouv.fr. Non-contractual photos - Suggestions for layouts
Condominiums of 19 units (No proceedings in progress). Annual expenses : 936 euros.