Skip to main content

Buy Apartment 5 room(s) 116 m2

496 000 €
Rennes
(
35000
)
9834-A23

By registering on Cabinet Moraine website, you will benefit from numerous additional services. Registration is completely free and does not commit you to anything.

Log in
5
Rooms
4
Bedrooms
116m²
Surface

Property description

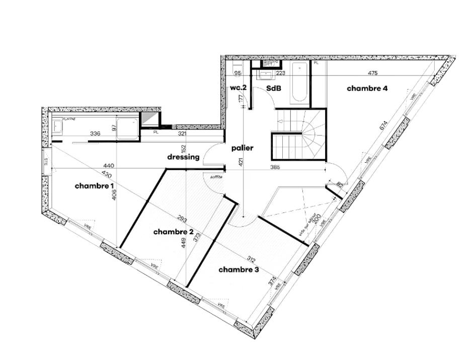
CABINET MORAINE - RENNES NEAR TOWN CENTER - BORDS DE VILAINE - 5 room apartment South West with terrace of 56.80m² - 2nd floor - garage - elevator and cellar. Not far from the city center and the TGV station, close to transport and amenities, in a new residential area Bords de la Vilaine enjoying a natural area of 4ha for leisure or walks, in a luxury residence and contemporary architecture, located on the 2nd floor with elevator, 5-room apartment of 116.20m² facing South West, comprising: an entrance with cupboard, large living room opening onto a beautiful terrace, open kitchen, 4 bedrooms, bathroom, 2 toilets, other terrace ... Garage and cellar. - Reduced notary fees - developer price - RT2012 standards www.immobilier-moraine.fr 02 99 32 43 86
Condominiums of 48 units (No proceedings in progress). Annual expenses : 2091 euros.

Energy expenditure

A B C D E F G high performance housing extremely inefficient housing Not disclosed
A B C D E F G very high CO2 emissions low CO2 emissions Not disclosed

Location of property

Contactez-nous

Contact an advisor by phone or
leave us a message by filling the form

02 99 32 43 86

Financial simulation
Your loan amount Loan amount
Your loan period Loan period
Interest rate before negotiation Interest rates
Loan amount
Loan period
Monthly payments

 Reload Contact us

Biens similaires

A B C D E F G high performance housing extremely inefficient housing Not disclosed
A B C D E F G very high CO2 emissions low CO2 emissions Not disclosed
Affichage :