Skip to main content

Buy Apartment 3 room(s) 63 m2

Price not given
Rennes
(
35000
)
489929-A65

By registering on Cabinet Moraine website, you will benefit from numerous additional services. Registration is completely free and does not commit you to anything.

Log in
3
Rooms
2
Bedrooms
1
Bathroom
63m²
Surface

Property description

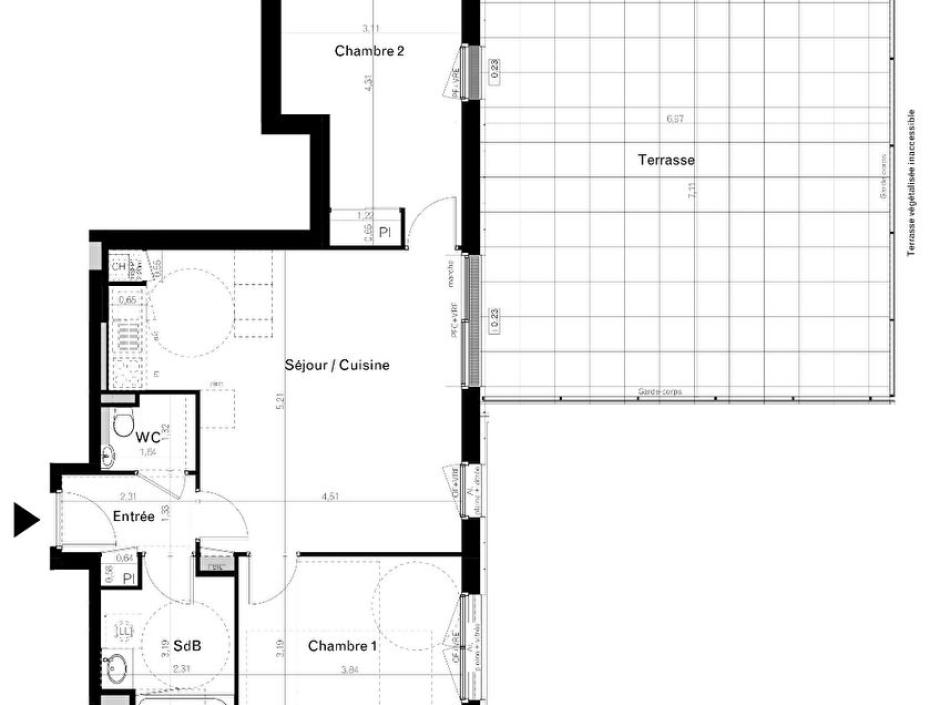
RENNES CENTER - 3 room apartment 63.90sqm 6th floor terrace of 49.60 sqm - lift - secure parking in the basement. A haven of tranquility in the city center! You can do everything on foot: from the Lices market to the historic center and its pedestrian streets, restaurants, schools, the banks of the Ille... in a residence that meets the latest RT2012 standards with top-of-the-range services, apartment 3 rooms of 63.90sqm on the 6th floor including: an entrance with cupboard, living room opening onto a terrace of 49.60 sqm, open kitchen, two bedrooms, one with cupboard, bathroom, wc. Secure basement parking. Developer price - reduced notary fees - RT2012 standards www.immobilier-moraine.fr 02 99 32 43 86 Information on the risks to which this property is exposed is available on the Georisques website: www.georisques.gouv.fr
Condominiums of 56 units (No proceedings in progress). Annual expenses : 920 euros.

Energy expenditure

A B C D E F G high performance housing extremely inefficient housing Not disclosed
A B C D E F G very high CO2 emissions low CO2 emissions Not disclosed

Location of property

Contactez-nous

Contact an advisor by phone or
leave us a message by filling the form

02 99 32 43 86

Financial simulation
Your loan amount Loan amount
Your loan period Loan period
Interest rate before negotiation Interest rates
Loan amount
Loan period
Monthly payments

 Reload Contact us

Biens similaires

A B C D E F G high performance housing extremely inefficient housing Not disclosed
A B C D E F G very high CO2 emissions low CO2 emissions Not disclosed
Affichage :