Skip to main content

Buy Apartment 3 room(s) 62 m2

343 000 €
Rennes
(
35000
)
55469-A13

By registering on Cabinet Moraine website, you will benefit from numerous additional services. Registration is completely free and does not commit you to anything.

Log in
3
Rooms
2
Bedrooms
1
Bathroom
62m²
Surface

Property description

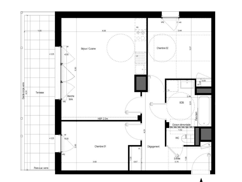
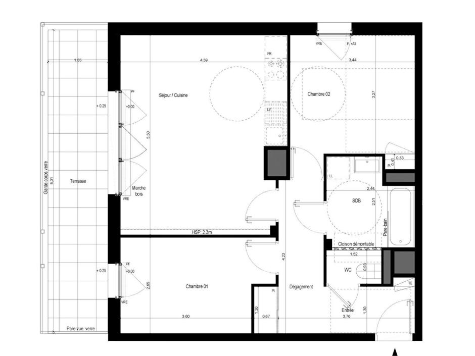
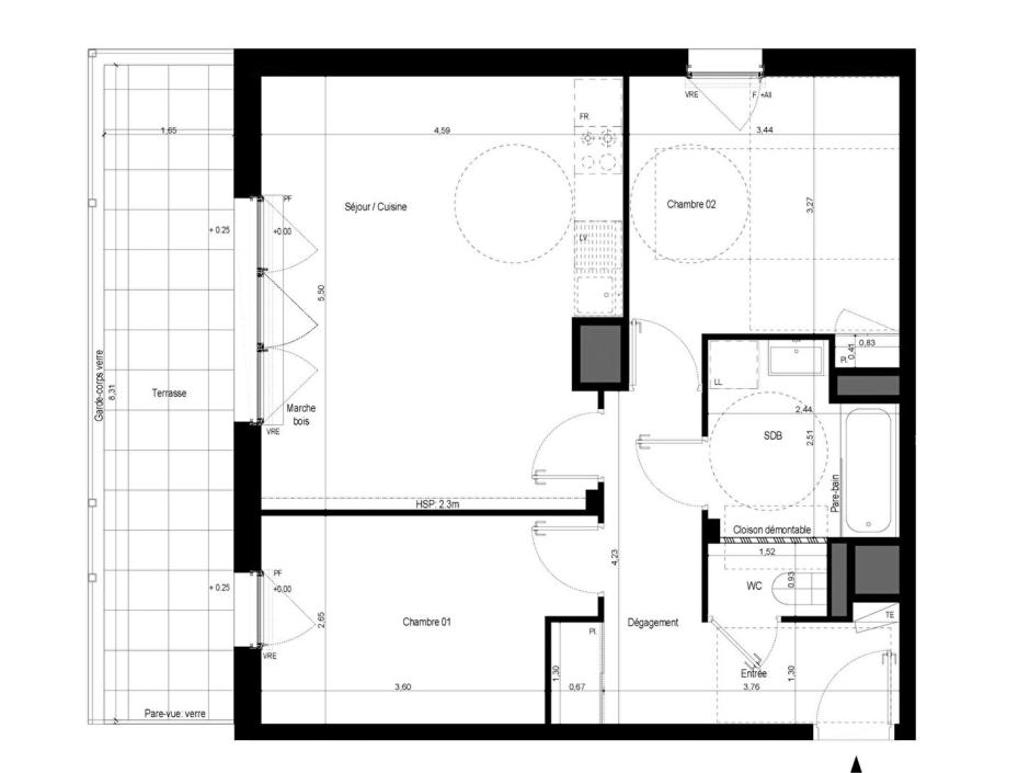
RENNES - East / Jeanne d'Arc - 3-room apartment of 62.94sqm West with terrace of 13.71sqm - 1st floor - elevator - cellar - private parking in secure basement. Ideally located a stone's throw from the banks of the Vilaine, this apartment combines calm and practicality, while remaining a few minutes from the dynamic city center of Rennes. On the 1st floor of a contemporary residence, this 3-room apartment of 62.94 sqm benefits from a neat layout and an ideal exposure to the West, offering brightness and comfort. The entrance, extended by a functional hallway, opens onto a spacious living room with open kitchen, designed to accommodate moments of conviviality. This living space is bathed in natural light and gives access to a generous terrace of 13.71 sqm, perfect for enjoying the beautiful days in complete privacy. The sleeping area consists of two bedrooms, one of which has a closet. A modern bathroom, a separate toilet, and a storeroom complete this apartment, ensuring daily comfort. Secure underground parking completes this property, guaranteeing serenity and practicality in an urban setting. Promoter price. Notary fees waived. Information on the risks to which this property is exposed is available on the Géorisques website: www.georisques.gouv.fr. Photos are non-contractual - Layout suggestions
Condominiums of 26 units (No proceedings in progress). Annual expenses : 900 euros.

Energy expenditure

A B C D E F G high performance housing extremely inefficient housing Not required
A B C D E F G very high CO2 emissions low CO2 emissions Not required

Location of property

Contactez-nous

Contact an advisor by phone or
leave us a message by filling the form

02 99 32 43 86

Financial simulation
Your loan amount Loan amount
Your loan period Loan period
Interest rate before negotiation Interest rates
Loan amount
Loan period
Monthly payments

 Reload Contact us

Biens similaires

A B C D E F G high performance housing extremely inefficient housing Not required
A B C D E F G very high CO2 emissions low CO2 emissions Not required
Affichage :