Skip to main content

Buy Apartment 2 room(s) 43 m2

Price not given
Cancale
(
35260
)
9013K-A03

By registering on Cabinet Moraine website, you will benefit from numerous additional services. Registration is completely free and does not commit you to anything.

Log in
2
Rooms
1
Bedroom
43m²
Surface

Property description

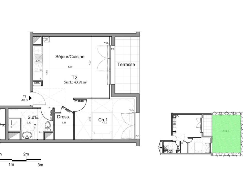
CANCALE - 2 room apartment of 43.91 sqm with terrace of 6.59sqm and garden of 37.56sqm - 15 min. from St Malo, on the heights of Cancale, "exceptional and preserved natural environment! "in the Bay of Mont St Michel, not far from St Méloir des Ondes, St Coulomb... benefiting from many shops in the town center and on the port , urban transport lines, quick access to the center, the port, schools .... in a quality residence with neat services and equipment, inspired by local habitat, intimate to the latest RT2012 standards erected around of landscaped areas, 2-room apartment located on the ground floor comprising: a living room opening onto a 6.69sqm terrace, 37.56sqm garden, open kitchen, bedroom, dressing room, shower room with wc. Direct promoter price - reduced notary fees - RT2012
Condominiums of 30 units (No proceedings in progress). Annual expenses : 630 euros.

Energy expenditure

A B C D E F G high performance housing extremely inefficient housing Not disclosed
A B C D E F G very high CO2 emissions low CO2 emissions Not disclosed

Location of property

Contactez-nous

Contact an advisor by phone or
leave us a message by filling the form

02 99 32 43 86

Financial simulation
Your loan amount Loan amount
Your loan period Loan period
Interest rate before negotiation Interest rates
Loan amount
Loan period
Monthly payments

 Reload Contact us

Biens similaires

A B C D E F G high performance housing extremely inefficient housing Not disclosed
A B C D E F G very high CO2 emissions low CO2 emissions Not disclosed
Affichage :