Skip to main content

Buy Apartment 4 room(s) 84 m2

284 850 €
Saint-Malo
(
35400
)
7224D-36C

By registering on Cabinet Moraine website, you will benefit from numerous additional services. Registration is completely free and does not commit you to anything.

Log in
4
Rooms
3
Bedrooms
84m²
Surface

Property description

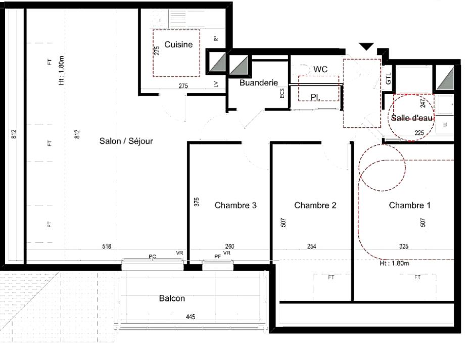
CABINET MORAINE - SAINT MALO - 4 room apartment South 84m² sh - 102.18m² floor area - 3rd floor - 7.57 m² balcony garage! and private parking Purchase only in principal - VAT rate 5.5% - Conditions contact us 1.6 km from the station, not far from the beaches (1.9 km) and the Intra-Muros, close to all amenities, shops and all amenities, in a quiet area, on the heights of St Malo, in a residence meeting the latest RT2012 standards, of contemporary architecture, 4-room apartment facing South including: an entrance with cupboard, living room, independent kitchen, 3 bedrooms, bathroom 'water, laundry room, wc. Large balcony of 7.57m², Garage and private parking Reduced notary fees - promoter's price. www.immobilier-moraine.fr 02 99 32 43 86
Condominiums of 19 units (No proceedings in progress). Annual expenses : 1209 euros.

Energy expenditure

A B C D E F G high performance housing extremely inefficient housing Not disclosed
A B C D E F G very high CO2 emissions low CO2 emissions Not required

Location of property

Contactez-nous

Contact an advisor by phone or
leave us a message by filling the form

02 99 32 43 86

Financial simulation
Your loan amount Loan amount
Your loan period Loan period
Interest rate before negotiation Interest rates
Loan amount
Loan period
Monthly payments

 Reload Contact us

Biens similaires

A B C D E F G high performance housing extremely inefficient housing Not disclosed
A B C D E F G very high CO2 emissions low CO2 emissions Not required
Affichage :