Skip to main content

Buy Apartment 2 room(s) 45 m2

255 000 €
Saint-Jacques-de-la-Lande
(
35136
)
60451-A303

By registering on Cabinet Moraine website, you will benefit from numerous additional services. Registration is completely free and does not commit you to anything.

Log in
2
Rooms
1
Bedroom
45m²
Surface

Property description

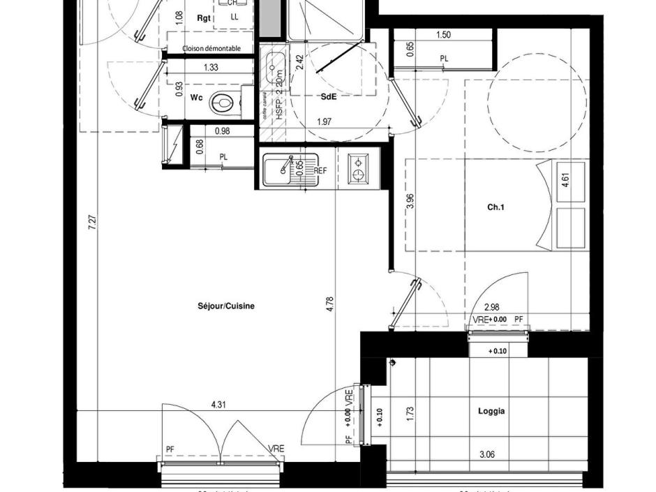
COURROUZE / ST JACQUES - 500 meters from the metro - 2-room apartment 45.59sqm West - 3rd floor - elevator - loggia - private parking Ideally located, 500 meters from the metro and transport, discover this 2-room apartment, with a surface area of 45.59 sqm, located on the 3rd floor with elevator of a modern residence meeting the latest 2020 standards. Located in the heart of a dynamic district, it offers a pleasant living environment with immediate access to shops, schools, services and infrastructure. Its strategic location guarantees optimal mobility thanks to the proximity of metro line B, bus lines and cycle paths. Bathed in light thanks to its full West exposure, this apartment consists of an entrance with cupboard, a living room with open kitchen opening onto a 5.30 sqm loggia, a bedroom with cupboard and private shower room, as well as a storeroom/laundry room and a separate toilet. Secure underground parking. Don't miss this ideal opportunity for an investment or a first acquisition, combining comfort, modernity and practicality. Contact us today for more information! Promoter price - Reduced notary fees Information relating to the risks to which this property is exposed is available on the Géorisques website: www.georisques.gouv.fr. Non-contractual photos, suggestions for developments
Condominiums of 24 units. Annual expenses : 648 euros.

Energy expenditure

A B C D E F G high performance housing extremely inefficient housing Not required
A B C D E F G very high CO2 emissions low CO2 emissions Not required

Location of property

Contactez-nous

Contact an advisor by phone or
leave us a message by filling the form

02 99 32 43 86

Financial simulation
Your loan amount Loan amount
Your loan period Loan period
Interest rate before negotiation Interest rates
Loan amount
Loan period
Monthly payments

 Reload Contact us

Biens similaires

A B C D E F G high performance housing extremely inefficient housing Not required
A B C D E F G very high CO2 emissions low CO2 emissions Not required
Affichage :