Buy Apartment 3 room(s) 62 m2
By registering on Cabinet Moraine website, you will benefit from numerous additional services. Registration is completely free and does not commit you to anything.
Log inProperty description
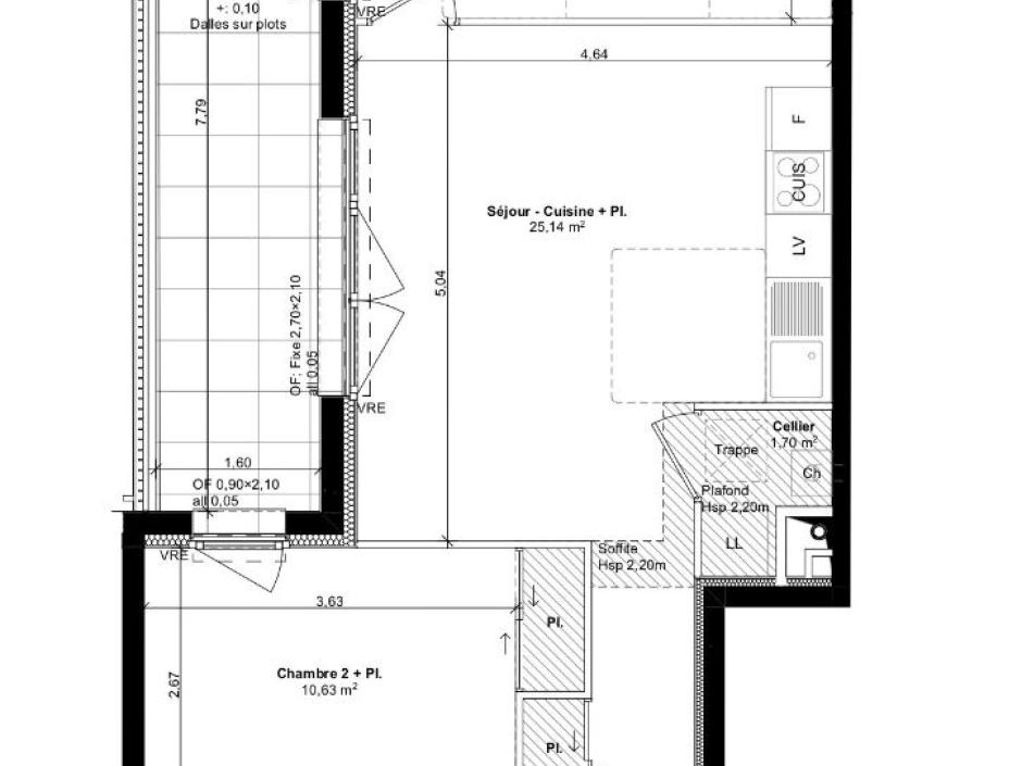
Saint Malo - 2-bedroom apartment, 62.14 sq m, south-facing, with a 5.18 sq m loggia - 1st floor - elevator - secure underground parking. Located 900 meters from the beaches, amenities, and shops, in a quiet residential area, within a high-end residence built to the latest standards, combining modern comfort and energy efficiency, this 2-bedroom apartment of 62.14 sq m, facing south, is on the 1st floor with elevator access. It comprises an entrance hall with a closet, a living room with an open-plan kitchen leading to a 5.18 sq m loggia, two bedrooms, a shower room, and a separate toilet. Two secure underground parking spaces complete this property. High-quality features: RT2020 energy performance - Secure access via badge and video intercom. Developer price - reduced notary fees. Information on the risks to which this property is exposed is available on the Géorisques website: www.georisques.gouv.fr.
Condominiums of 57 units. Annual expenses : 892 euros.