Buy Apartment 2 room(s) 44 m2
By registering on Cabinet Moraine website, you will benefit from numerous additional services. Registration is completely free and does not commit you to anything.
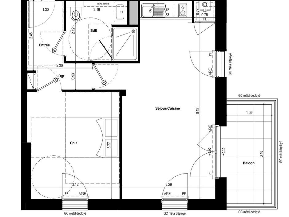
Log inProperty description
RENNES ST JACQUES / COURROUZE - 2-room apartment 44.04sqm South West - 2nd floor - elevator - balcony 5.53sqm - secure underground parking. Discover this charming 2-room apartment, offering a surface area of 44.04 sqm and a beautiful South-West exposure. Nestled on the 2nd floor of a contemporary residence with elevator, compliant with RT 2020 standards, it benefits from a privileged location with its immediate proximity to shops, schools, services and infrastructure, as well as excellent connectivity thanks to metro line B 500 meters away, bus lines and cycle paths. Bathed in light thanks to its South-West exposure, this apartment consists of an entrance hall, a living room with open kitchen opening onto a 5.53 sqm balcony, a bedroom and a bathroom with WC. Secure underground parking completes this property. Don't miss this ideal opportunity for an investment or a first acquisition, combining comfort, modernity and practicality. Promoter price - Reduced notary fees Information relating to the risks to which this property is exposed is available on the Géorisques website: www.georisques.gouv.fr. Non-contractual photos, suggestions for developments
Condominiums of 24 units. Annual expenses : 633 euros.