Skip to main content

Buy Apartment 3 room(s) 63 m2

345 512 €
Rennes
(
35000
)
60721-A404

By registering on Cabinet Moraine website, you will benefit from numerous additional services. Registration is completely free and does not commit you to anything.

Log in
3
Rooms
2
Bedrooms
1
Bathroom
63m²
Surface

Property description

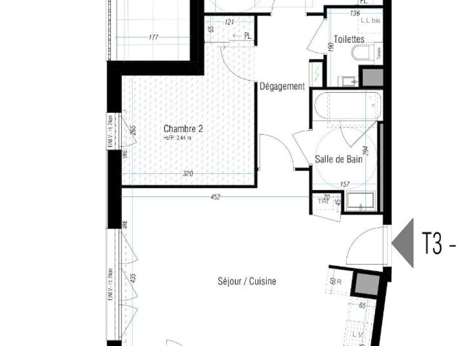
RENNES - Jeanne d'Arc - 3-room apartment of 63.13sqm West - 4th floor - elevator - loggia of 7.83sqm - secure underground garage. Principal purchase - Price VAT rate 5.5% A stone's throw from the metro, close to shops, schools and public transport, this 3-room apartment facing West benefits from a location allowing quick access to the city center (Sainte-Anne in 10 minutes, Rennes train station in 15 minutes). , it is not far from the parks, offering an ideal setting for relaxing. Located on the 4th floor with elevator, this bright apartment of 63.13sqm sqm, has an entrance with hallway, a living room with open kitchen giving access to a loggia of 7.83sqm to the West. It includes two bedrooms, one with a closet, as well as a bathroom and separate toilet. A secure underground garage completes this property. Finally, heating, provided by the district heating network, guarantees a solution that is both economical and ecological. Contact us now to find out more and reserve your future apartment! Promoter price - Information on the risks to which this property is exposed is available on the Géorisques website: www.georisques.gouv.fr. Non-contractual photos - Suggestions for layouts
Condominiums of 43 units. Annual expenses : 907 euros.

Energy expenditure

A B C D E F G high performance housing extremely inefficient housing Not required
A B C D E F G very high CO2 emissions low CO2 emissions Not required

Location of property

Contactez-nous

Contact an advisor by phone or
leave us a message by filling the form

02 99 32 43 86

Financial simulation
Your loan amount Loan amount
Your loan period Loan period
Interest rate before negotiation Interest rates
Loan amount
Loan period
Monthly payments

 Reload Contact us

Biens similaires

A B C D E F G high performance housing extremely inefficient housing Not required
A B C D E F G very high CO2 emissions low CO2 emissions Not required
Affichage :