Skip to main content

Buy Apartment 2 room(s) 47 m2

252 000 €
Bruz
(
35170
)
6223-13

By registering on Cabinet Moraine website, you will benefit from numerous additional services. Registration is completely free and does not commit you to anything.

Log in
2
Rooms
1
Bedroom
47m²
Surface

Property description

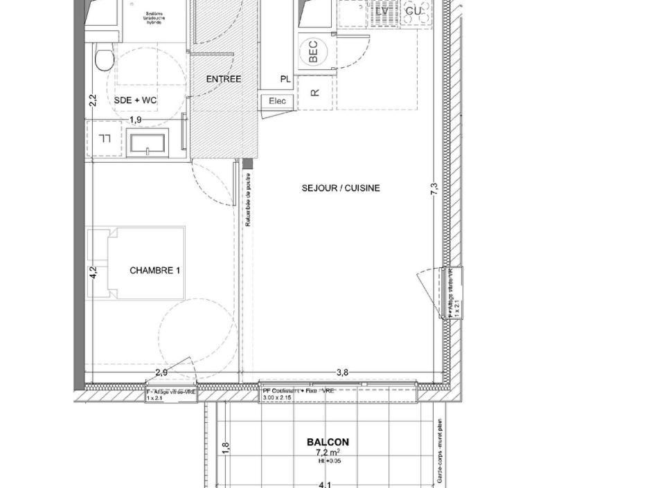
Bruz - 1-Bedroom Apartment, 47.06 sq m, South-Facing - 1st Floor - Elevator - Balconies 7.17 sq m - Secure Underground Parking. Located 9 km from Rennes, in the heart of a sought-after area renowned for its quality of life and immediate proximity to the city center, discover this 1-bedroom apartment. Situated on the first floor of a contemporary RE2020 compliant building with an elevator, this property combines modern design, high energy efficiency, and optimal living comfort. Offering 47.06 sq m of perfectly laid-out living space and a south-facing aspect, this apartment impresses with its bright atmosphere and comfort. It comprises an entrance hall with a built-in wardrobe, a bright living room with an open-plan kitchen, opening onto a 7.17 sq m balcony, ideal for enjoying the sunshine. A pleasant bedroom, a shower room with WC, and secure underground parking complete this property. In terms of mobility, the location is simply exceptional: Rennes is accessible in just 10 minutes thanks to the Bruz TER train station, the STAR bus network simplifies daily commutes, and Rennes Bretagne Airport is nearby, a real advantage for stress-free travel. A modern and ideally located apartment: a great opportunity on the outskirts of Rennes. Developer price - reduced notary fees. Information on the risks to which this property is exposed is available on the Géorisques website: www.georisques.gouv.fr.
Condominiums of 39 units. Annual expenses : 676 euros.

Energy expenditure

A B C D E F G high performance housing extremely inefficient housing Not required
A B C D E F G very high CO2 emissions low CO2 emissions Not required

Location of property

Contactez-nous

Contact an advisor by phone or
leave us a message by filling the form

02 99 32 43 86

Financial simulation
Your loan amount Loan amount
Your loan period Loan period
Interest rate before negotiation Interest rates
Loan amount
Loan period
Monthly payments

 Reload Contact us

Biens similaires

A B C D E F G high performance housing extremely inefficient housing Not required
A B C D E F G very high CO2 emissions low CO2 emissions Not required
Affichage :