Skip to main content

Buy Apartment 2 room(s) 40 m2

185 000 €
Acigné
(
35690
)
6251-3205

By registering on Cabinet Moraine website, you will benefit from numerous additional services. Registration is completely free and does not commit you to anything.

Log in
2
Rooms
1
Bedroom
40m²
Surface

Property description

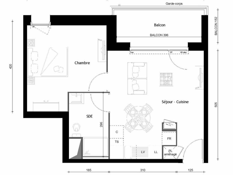
ACIGNE - 1-Bedroom Apartment, 40.17 sq m, West-facing - 2nd floor - elevator - 6.11 sq m balcony - parking. Close to Rennes and Cesson-Sévigné, ideally located in Acigné, within a residence compliant with the latest RT 2020 standards, this 1-bedroom apartment offers 40.17 sq m of living space. Situated on the 2nd floor with elevator access, it comprises an entrance hall with a built-in wardrobe, a west-facing living room with an open-plan kitchen leading onto a 6.11 sq m balcony, a bedroom, and a shower room with WC. A secure underground parking space completes this property. Amenities are within walking distance: bakery, shops, nursery and primary schools, after-school care, and a STAR bus stop... An ideal environment to live, grow up, and settle down. Developer price - reduced notary fees. Information on the risks to which this property is exposed is available on the Géorisques website: www.georisques.gouv.fr
Condominiums of 53 units. Annual expenses : 576 euros.

Energy expenditure

A B C D E F G high performance housing extremely inefficient housing Not required
A B C D E F G very high CO2 emissions low CO2 emissions Not required

Location of property

Contactez-nous

Contact an advisor by phone or
leave us a message by filling the form

02 99 32 43 86

Financial simulation
Your loan amount Loan amount
Your loan period Loan period
Interest rate before negotiation Interest rates
Loan amount
Loan period
Monthly payments

 Reload Contact us

Biens similaires

A B C D E F G high performance housing extremely inefficient housing Not required
A B C D E F G very high CO2 emissions low CO2 emissions Not required
Affichage :